Приветствую Вас Гость :: RSS :: Вторник :: 23.12.2025 ::
Реклама на сайте
Меню портала

Форма входа

Мини-чат

[ Новые сообщения · Участники · Правила форума · Поиск · RSS ]

Вентиляция, приточные установки
Anny4100Дата: Вторник, 05.11.2013, 14:07 | Сообщение # 181
Лейтенант
Хабаровск
Награды:
0  
Группа: Проверенные
Город: Хабаровск
Сообщений: 65
Репутация: 0
Статус: Offline
Информации по стали нет.  Неужели никто не встречался с таким? И никто не может подсказать какую лучше расценку применить, на прокладку воздуховодов толщ. стали 1,5 мм периметром 400*400, 350/300, 300*300 и 250*250. Толщина большая, а размеры маленькие, ничего не могу придумать.
 
veronikaДата: Вторник, 05.11.2013, 14:09 | Сообщение # 182
Генералиссимус
Волгодонск
Награды:
379  
Группа: Модераторы
Город: Волгодонск
Сообщений: 12793
Репутация: 332
Статус: Offline
Цитата Anny4100 ()
Толщина большая, а размеры маленькие, ничего не могу придумать.
например - воспользоваться поиском по форуму. я помнится вопрос такой задавала, да и еще в одной теме точно - было обсуждение


"Хочешь усложнить себе жизнь, начни верить людям."
"Трудно найти черную кошку в темной комнате, особенно если ее там нет"
(работаю в Гранд-смете 5.5.4, 6.0.1)
 
Anny4100Дата: Вторник, 05.11.2013, 14:51 | Сообщение # 183
Лейтенант
Хабаровск
Награды:
0  
Группа: Проверенные
Город: Хабаровск
Сообщений: 65
Репутация: 0
Статус: Offline
Цитата veronika ()
например - воспользоваться поиском по форуму
Искала, не нашла, может быть подскажите ссылочку?
 
veronikaДата: Вторник, 05.11.2013, 15:00 | Сообщение # 184
Генералиссимус
Волгодонск
Награды:
379  
Группа: Модераторы
Город: Волгодонск
Сообщений: 12793
Репутация: 332
Статус: Offline
Anny4100, дословно - берем меньшей толщины подходящего размера.


"Хочешь усложнить себе жизнь, начни верить людям."
"Трудно найти черную кошку в темной комнате, особенно если ее там нет"
(работаю в Гранд-смете 5.5.4, 6.0.1)
 
Anny4100Дата: Понедельник, 18.11.2013, 14:27 | Сообщение # 185
Лейтенант
Хабаровск
Награды:
0  
Группа: Проверенные
Город: Хабаровск
Сообщений: 65
Репутация: 0
Статус: Offline
smile спасибо!

Добавлено (18.11.2013, 14:27)
---------------------------------------------
Добрый всем день! smile У меня вопрос опять: установка канального вентилятора в комплекте с обратным клапаном,шумоглушителем и трансформатором, ценю как установку радиального вентилятора + установка шумоглушителя + установка клапана....а по какой расценке взять установку трансформатора http://www.airmag.ru/goods_detail/2058/, в 8-ом сборнике? не могу подобрать расценку...может кто поможет?

 
dozorДата: Понедельник, 18.11.2013, 14:52 | Сообщение # 186
Генералиссимус
Санкт-Петербург
Награды:
110  
Группа: Модераторы
Город: Санкт-Петербург
Сообщений: 4520
Репутация: 224
Статус: Offline
Anny4100, монтаж трансформатора м08-01-080-XX
 
Anny4100Дата: Понедельник, 18.11.2013, 15:05 | Сообщение # 187
Лейтенант
Хабаровск
Награды:
0  
Группа: Проверенные
Город: Хабаровск
Сообщений: 65
Репутация: 0
Статус: Offline
Да, похоже на правду, спасибо dozor!
 
Galina53Дата: Понедельник, 18.11.2013, 15:05 | Сообщение # 188
Генералиссимус
Кемерово
Награды:
242  
Группа: Проверенные
Город: Кемерово
Сообщений: 11640
Репутация: 207
Статус: Offline
Цитата dozor ()
монтаж трансформатора м08-01-080-XX
Скорее по м11. Это же регулятор скорости вентилятора.
 
dozorДата: Понедельник, 18.11.2013, 16:30 | Сообщение # 189
Генералиссимус
Санкт-Петербург
Награды:
110  
Группа: Модераторы
Город: Санкт-Петербург
Сообщений: 4520
Репутация: 224
Статус: Offline
Galina53, я думал про м11, но меня смутило, что он полностью ручного переключения. Но и м11 тоже приемлем.
 
bukashkaДата: Пятница, 28.02.2014, 15:22 | Сообщение # 190
Полковник
Санкт-Петербург
Награды:
2  
Группа: Проверенные
Город: Санкт-Петербург
Сообщений: 196
Репутация: -3
Статус: Offline
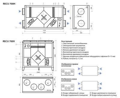
Помогите с расценкой на монтаж вентустановки RECU 1200 HE-EC и 700HE-EC.
Вначале взяла как установку приточно-вытяжную , тип ПВУ-4 по  м35-01-005-7. Но сейчас засомневалась, почему эта расценка в оборудовании для сельскохозяйственных производств.
Какую расценку посоветуете??
 
veronika-2Дата: Пятница, 28.02.2014, 15:47 | Сообщение # 191
Генералиссимус
Ростов-на-Дону
Награды:
449  
Группа: Модераторы
Город: Ростов-на-Дону
Сообщений: 21653
Репутация: 809
Статус: Offline
bukashka, 20 сб вам в помощь )))


Психологические консультации онлайн.
Мой телеграмм
https://t.me/psyrnd2023
Вконтакте
https://vk.com/public214093226
 
bukashkaДата: Пятница, 28.02.2014, 15:50 | Сообщение # 192
Полковник
Санкт-Петербург
Награды:
2  
Группа: Проверенные
Город: Санкт-Петербург
Сообщений: 196
Репутация: -3
Статус: Offline
по описанию на сайтах, эта установка приточно-вытяжная. в 20 сборнике не нашла такую((
 
veronika-2Дата: Пятница, 28.02.2014, 15:52 | Сообщение # 193
Генералиссимус
Ростов-на-Дону
Награды:
449  
Группа: Модераторы
Город: Ростов-на-Дону
Сообщений: 21653
Репутация: 809
Статус: Offline
Цитата bukashka ()
эта установка приточно-вытяжная.
а есть отличия от обычной приточной установки? помимо функционала?


Психологические консультации онлайн.
Мой телеграмм
https://t.me/psyrnd2023
Вконтакте
https://vk.com/public214093226
 
bukashkaДата: Пятница, 28.02.2014, 16:12 | Сообщение # 194
Полковник
Санкт-Петербург
Награды:
2  
Группа: Проверенные
Город: Санкт-Петербург
Сообщений: 196
Репутация: -3
Статус: Offline
Цитата veronika-2 ()
а есть отличия от обычной приточной установки? помимо функционала?
Честно говоря, я пока не поняла.

Вот схема.
Прикрепления: 3971573.jpeg (581.4 Kb)
 
МарикаДата: Пятница, 28.02.2014, 16:16 | Сообщение # 195
Генералиссимус
Тюмень
Награды:
201  
Группа: Модераторы
Город: Тюмень
Сообщений: 5416
Репутация: 230
Статус: Offline
Цитата bukashka ()
Вот схема.
и?
Цитата veronika-2 ()
есть отличия от обычной приточной установки? помимо функционала?


Голова - предмет темный. Исследованию не подлежит.

Мудрость приходит с годами. Но иногда годы приходят одни

(работаю Гранд-смета, РИК)
 
Поиск:

Сервисы



Телеграмм чат


Администратор
icq: 264-585-675
e-mail: andreyka_s@list.ru
web: www.semushin.name


Согласно п. 4.5 Правил Сметного портала запрещено размещение материалов попадающих под действие Статьи 1259 и Статьи 1270 ГК РФ, на которые распространяются авторские права правообладателя, без согласования с ним. В случае обнаружения материалов нарушающих права правообладателя просим сообщить через форму обратной связи.
Семушин А.А.
Яндекс.Метрика