Приветствую Вас Гость :: RSS :: Суббота :: 02.05.2026 ::
Реклама на сайте
Меню портала

Форма входа

Мини-чат

[ Новые сообщения · Участники · Правила форума · Поиск · RSS ]

Дополнения к ГЭСН/ФЕР в 2017 году
av_00Дата: Воскресенье, 02.04.2017, 14:46 | Сообщение # 256
Генералиссимус
Награды:
167  
Группа: Проверенные
Сообщений: 5857
Репутация: 387
Статус: Offline
Цитата Гаррик ()
было: 1м3  кладки бетона (…обмуровки; набивки; массы в деле; заполнения; футеровки; элементов; армированного бетона; блоков);
стало везде: м3
всё новое – это хорошо забытое старое... – загляните в базу редакции 2001, жили ведь как-то, не крякали...
 
ГаррикДата: Воскресенье, 02.04.2017, 16:00 | Сообщение # 257
Генерал-лейтенант
Дятьково
Награды:
19  
Группа: Проверенные
Город: Дятьково
Сообщений: 560
Репутация: 25
Статус: Offline
Цитата av_00 ()
загляните в базу редакции 2001, жили ведь как-то, не крякали..
av_00, считая себя великим специалистом, на всякий случай заглядывайте сами в рекомендуемые документы.
Изрекая ничем не подтверждённые истины, Вы оказываете плохую услугу не совсем опытным сметчикам, идущим на этот форум за дополнительными знаниями.
Речь идёт о том, что неведомая общность "супер-специалистов", сбившаяся в компанию по освоению очень хороших денех, не нашла ничего лучшего, как сымитировать очень трудоёмкий объём работ по "практически полной переработке старой ФСНБ 2001 года в новую". В частности, тупой перестановкой некоторых букв и цифр.
А Вы адвокатируете это безобразие. Никогда не приходилось доказывать неадекватному заказчику, что тот неправильно воспринимает измеритель какой-либо конкретной нормы?
 
abk63Дата: Воскресенье, 02.04.2017, 16:45 | Сообщение # 258
Сметчик
Оренбург
Награды:
413  
Группа: Проверенные
Город: Оренбург
Сообщений: 20516
Репутация: 740
Статус: Offline
Гаррик, вы как-то неадекватно на av_00, наехали... он более авторитетный критик новой базы чем вы.... biggrin  ну и в сметном деле не хуже меня biggrin


Сметная лавка. Беседы о сметах и не только...
Сметный портал в ТГ
Сметчикам - про ПИР, ПНР и не только...
 
ГаррикДата: Воскресенье, 02.04.2017, 17:15 | Сообщение # 259
Генерал-лейтенант
Дятьково
Награды:
19  
Группа: Проверенные
Город: Дятьково
Сообщений: 560
Репутация: 25
Статус: Offline
abk63av_00, тыщу извинений двум авторитетам teehee
 
av_00Дата: Воскресенье, 02.04.2017, 20:20 | Сообщение # 260
Генералиссимус
Награды:
167  
Группа: Проверенные
Сообщений: 5857
Репутация: 387
Статус: Offline
Цитата Гаррик ()
на всякий случай заглядывайте сами в рекомендуемые документы.Изрекая ничем не подтверждённые истины, Вы оказываете плохую услугу не совсем опытным сметчикам, идущим на этот форум за дополнительными знаниями.

однако...
Уважаемый, судя по вашим репликам, вы пришли в сметное дело после 2005 года, в противном случае вы бы помнили, что первые выпуски ГЭСН/ФЕР (до 2005 г.) имели упрощённые единицы измерения (м, м2, м3 и тэпэ), а с 2005 года появились расширенные единицы измерения.
В программе длина поля единиц измерения в самом начале была 10 символов, в 2005 уже 20 символов, с 2006 = 23 символа, а с 2009 стала = 90 символов.
Приказы, в которых появились расширенные единицы измерений норм и расценок искать не стану – лень, сами копайте на досуге...

выглядело это так



Прикрепления: 9070812.png (5.4 Kb) · 5625289.png (6.5 Kb) · 8094999.png (5.2 Kb)
 
ГаррикДата: Понедельник, 03.04.2017, 08:24 | Сообщение # 261
Генерал-лейтенант
Дятьково
Награды:
19  
Группа: Проверенные
Город: Дятьково
Сообщений: 560
Репутация: 25
Статус: Offline
av_00, не менее уважаемый, Вы бы меня ещё 1984 годом упрекнули.
Плохим аргументом является наличие или отсутствие необходимых символов в программе, Вами используемой.
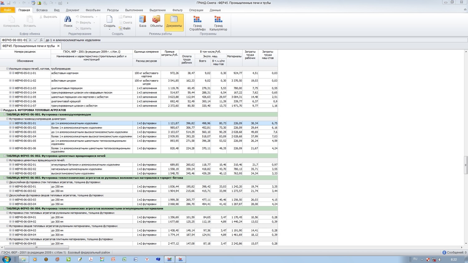
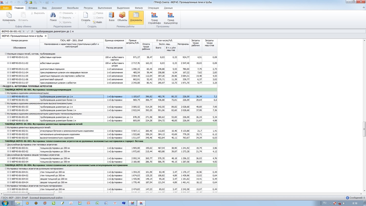
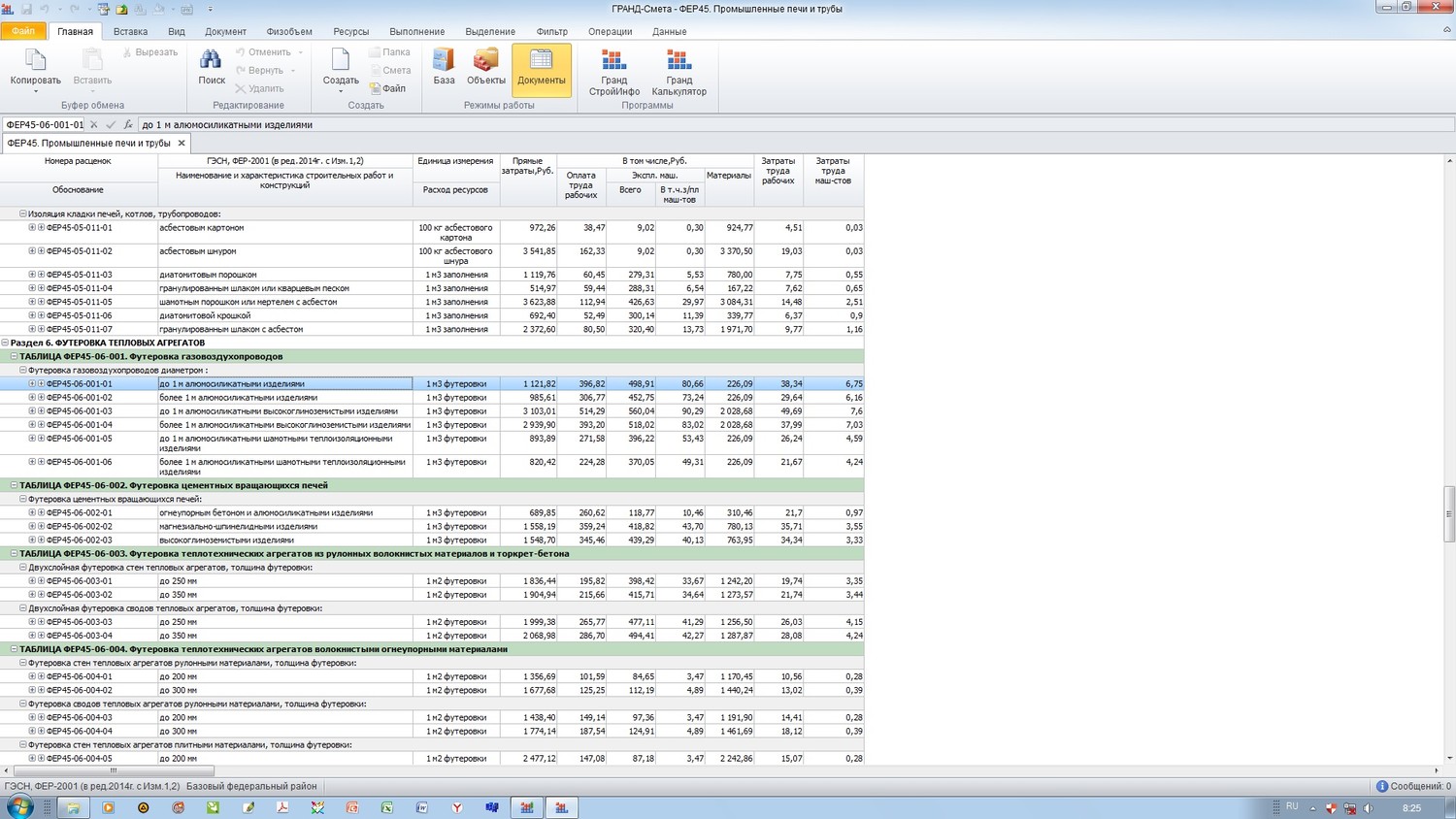
Прикладываю скриншоты ФЕР45 из нормальной программы, из Гранд Сметы.
Одновременно, возникли сомнения в адекватности базы, размещенной Вами под спойлером "2004". В расценках 45-05-011-(03-07) ед.изм. 1 м3 заполнения. Жалко, что невозможно найти бумажные первоисточники. Может мы и зря символами меряемся из-за этих безобразников из Минстроя.
Речь вообще-то первоначально зашла о том, что любые нормативы (тем более государственные) и измерители работ в них не должны допускать неоднозначной трактовки.
Прикрепления: 4791972.jpg (263.9 Kb) · 1343539.jpg (261.0 Kb) · 4100257.jpg (262.1 Kb)
 
av_00Дата: Понедельник, 03.04.2017, 11:17 | Сообщение # 262
Генералиссимус
Награды:
167  
Группа: Проверенные
Сообщений: 5857
Репутация: 387
Статус: Offline
Цитата Гаррик ()
Плохим аргументом является наличие или отсутствие необходимых символов в программе, Вами используемой

Ну вот видите, что получается – в РИК расширенные единицы измерения были внесены вместе с изм. и доп. к ГЭСН-2001 Выпуск 1 от 21.04.2005 г., а до этого момента в ГЭСН/ФЕР были укороченные единицы измерения...

Это говорит о том, что я столкнулся и работал с укороченными единицами измерения ещё в 2004 году, для вас же эти укороченные ед.изм. в ГЭСН/ФЕР 2017 стали новостью...
 
ГаррикДата: Понедельник, 03.04.2017, 11:32 | Сообщение # 263
Генерал-лейтенант
Дятьково
Награды:
19  
Группа: Проверенные
Город: Дятьково
Сообщений: 560
Репутация: 25
Статус: Offline
Цитата av_00 ()
я столкнулся и работал с укороченными единицами измерения ещё в 2004 году
Остаётся только снять шляпу перед таким продвинутым специалистом respect
 
slavalitДата: Вторник, 04.04.2017, 04:58 | Сообщение # 264
Инженер-сметчик
Симферополь
Награды:
258  
Группа: Модераторы
Город: Симферополь
Сообщений: 7568
Репутация: 249
Статус: Offline
Нашли о чем спорить... )))
Но если так уж интересна истина, то 45-й ФЕР был утвержден 24.12.2003 и опубликован в 2004 году, и там изначально расширенные единицы были (издание Госстрой России. - М.: ФГУП ЦПП, 2004)
Да и в других сборниках ФЕР изначально были расширенные единицы...  
 
abk63Дата: Вторник, 04.04.2017, 05:18 | Сообщение # 265
Сметчик
Оренбург
Награды:
413  
Группа: Проверенные
Город: Оренбург
Сообщений: 20516
Репутация: 740
Статус: Offline
Цитата slavalit ()
Нашли о чем спорить... )))

так запрета меряться животами в правилах форума нету... biggrin


Сметная лавка. Беседы о сметах и не только...
Сметный портал в ТГ
Сметчикам - про ПИР, ПНР и не только...
 
slavalitДата: Вторник, 04.04.2017, 06:01 | Сообщение # 266
Инженер-сметчик
Симферополь
Награды:
258  
Группа: Модераторы
Город: Симферополь
Сообщений: 7568
Репутация: 249
Статус: Offline
av_00, Вы перепутали изменения вносимые РИКом в свои базы с изменениями в нормативной базе. Косяк РИКа был изначально. и только в 2005 году они их исправили... http://rik-server.mine.nu/txt/nb_sm_gesn_1.htm
А в ГЭСНах в 2005 году вообще не было никаких изменений... были в 2002 (выпуск 1), в 2004 (выпуск 2), в 2006 (выпуск 3), в 2007 (выпуски 4, 5)

Цитата Гаррик ()
Вы бы меня ещё 1984 годом упрекнули.
Упрекать не в чем, даже в базе 1984 году расширенные единицы измерений уже были smile Правда в сметных программах это никак не отражалось.. базы упрощенно ещё под ДОС забивались, помню там ещё вместо буквы "ч" везде четверки были )))
 
ГаррикДата: Вторник, 04.04.2017, 06:59 | Сообщение # 267
Генерал-лейтенант
Дятьково
Награды:
19  
Группа: Проверенные
Город: Дятьково
Сообщений: 560
Репутация: 25
Статус: Offline
Цитата Гаррик ()
abk63, av_00, тыщу извинений двум авторитетам

Упс... Оказывается, есть авторитетнее животы авторитеты bye
 
av_00Дата: Вторник, 04.04.2017, 09:15 | Сообщение # 268
Генералиссимус
Награды:
167  
Группа: Проверенные
Сообщений: 5857
Репутация: 387
Статус: Offline
Цитата slavalit ()
Вы перепутали изменения вносимые РИКом в свои базы с изменениями в нормативной базе. Косяк РИКа был изначально. и только в 2005 году они их исправили... http://rik-server.mine.nu/txt/nb_sm_gesn_1.htm

так я об этом уже сказал
Цитата av_00 ()
в РИК расширенные единицы измерения были внесены вместе с изм. и доп. к ГЭСН-2001 Выпуск 1 от 21.04.2005 г., а до этого момента в ГЭСН/ФЕР были укороченные единицы измерения...

Цитата slavalit ()
в ГЭСНах в 2005 году вообще не было никаких изменений...

и дата "21.04.2005" – это дата внесения данных в РИК, а не дата выпуска очередного Выпуска...


Сообщение отредактировал av_00 - Вторник, 04.04.2017, 09:19
 
slavalitДата: Вторник, 04.04.2017, 09:25 | Сообщение # 269
Инженер-сметчик
Симферополь
Награды:
258  
Группа: Модераторы
Город: Симферополь
Сообщений: 7568
Репутация: 249
Статус: Offline
av_00,
ИЗМЕНЕНИЯ И ДОПОЛНЕНИЯ К ГОСУДАРСТВЕННЫМ ЭЛЕМЕНТНЫМ СМЕТНЫМ НОРМАМ НА СТРОИТЕЛЬНЫЕ РАБОТЫ

Выпуск 1
Дата введения 2002-10-20

Выпуск 2
Дата введения 2004-03-09

Выпуск 3
Дата введения 2006-12-12

...

единицы измерения в этих дополнениях не менялись... facepalm
 
av_00Дата: Вторник, 04.04.2017, 10:23 | Сообщение # 270
Генералиссимус
Награды:
167  
Группа: Проверенные
Сообщений: 5857
Репутация: 387
Статус: Offline
Цитата slavalit ()
av_00,ИЗМЕНЕНИЯ И ДОПОЛНЕНИЯ К ГОСУДАРСТВЕННЫМ ЭЛЕМЕНТНЫМ СМЕТНЫМ НОРМАМ НА СТРОИТЕЛЬНЫЕ РАБОТЫВыпуск 1Дата введения 2002-10-20Выпуск 2Дата введения 2004-03-09Выпуск 3Дата введения 2006-12-12
знаю и не спрашивал об этом...
могу дополнить номерами постановлений об утверждении и вводе...
Выпуск 1:
ГЭСН – 15.10.2002 №127
ГЭСНр – 9.03.2004 №38
ГЭСНп – 9.03.2004 №40
ГЭСНмр – 15.11.2004 №148
и тэдэ
 
Поиск:

Сервисы



Телеграмм чат


Администратор
icq: 264-585-675
e-mail: andreyka_s@list.ru
web: www.semushin.name


Согласно п. 4.5 Правил Сметного портала запрещено размещение материалов попадающих под действие Статьи 1259 и Статьи 1270 ГК РФ, на которые распространяются авторские права правообладателя, без согласования с ним. В случае обнаружения материалов нарушающих права правообладателя просим сообщить через форму обратной связи.
Семушин А.А.
Яндекс.Метрика