Приветствую Вас Гость :: RSS :: Четверг :: 29.01.2026 ::
Реклама на сайте
Меню портала

Форма входа

Мини-чат

[ Новые сообщения · Участники · Правила форума · Поиск · RSS ]

  • Страница 3 из 5
  • «
  • 1
  • 2
  • 3
  • 4
  • 5
  • »
монтаж ВЧ-оборудования
abk63Дата: Четверг, 12.01.2017, 16:43 | Сообщение # 31
Сметчик
Оренбург
Награды:
413  
Группа: Проверенные
Город: Оренбург
Сообщений: 20514
Репутация: 740
Статус: Offline
Sane4ka, чертежи искать лень. но фильтр ставится на опоре (это индуктивная штука и отфильтровывает высокие частоты), а конденсатор висит на гирлянде обычно (это емкостная штука и отфильтровывает низкие частоты типа 50 Гц). но здесь возможно что-то необычное. не припомню такого
Цитата Sane4ka ()
фильтра присоединения с дифференциальным трансформатором ФПфф


Сметная лавка. Беседы о сметах и не только...
Сметный портал в ТГ
Сметчикам - про ПИР, ПНР и не только...
 
Sane4kaДата: Четверг, 12.01.2017, 16:49 | Сообщение # 32
Мисс Март 2012
Апатиты
Награды:
183  
Группа: Модераторы
Город: Апатиты
Сообщений: 5572
Репутация: 228
Статус: Offline
Цитата abk63 ()
фильтр ставится на опоре
У меня на метал.стойке для конденсатора связи
 
abk63Дата: Четверг, 12.01.2017, 16:53 | Сообщение # 33
Сметчик
Оренбург
Награды:
413  
Группа: Проверенные
Город: Оренбург
Сообщений: 20514
Репутация: 740
Статус: Offline
Цитата Sane4ka ()
У меня на метал.стойке для конденсатора связи
понятно. в любом случае это 2 разные штуковины. присоединяются отдельными спусками. в 84 годе были прямые расценки для них. сейчас чисто извращения.


Сметная лавка. Беседы о сметах и не только...
Сметный портал в ТГ
Сметчикам - про ПИР, ПНР и не только...
 
Sane4kaДата: Пятница, 13.01.2017, 08:16 | Сообщение # 34
Мисс Март 2012
Апатиты
Награды:
183  
Группа: Модераторы
Город: Апатиты
Сообщений: 5572
Репутация: 228
Статус: Offline
abk63, меня интересует количество какое по расценке на фильтр брать?
Цитата Sane4ka ()
У меня 1 шт. по проекту, а подрядчик ставит объем 2 и пишет что фильтр состоит из двух блоков
 
abk63Дата: Пятница, 13.01.2017, 08:35 | Сообщение # 35
Сметчик
Оренбург
Награды:
413  
Группа: Проверенные
Город: Оренбург
Сообщений: 20514
Репутация: 740
Статус: Offline
Цитата Sane4ka ()
abk63, меня интересует количество какое по расценке на фильтр брать?
нисколько. эта расценка не предназначена для установки оборудования ВЧ связи на ОРУ.
Конденсатор на опоре еще как-то можно взять по ФЕРм08-01-017 т.к. он в этом исполнении все-равно будет на изоляторе или шинной опоре
Фильтр... тоже сильно применительно ФЕРм08-01-018-01 или ФЕРм08-01-080-01. первое наверно ближе будет

Но если внимательно посмотреть проект то возможно будет 1 расценка ФЕРм08-01-025-29 где учтен разъединитель, и ФПП + ФЕРм08-01-017 для конденсатора.


Сметная лавка. Беседы о сметах и не только...
Сметный портал в ТГ
Сметчикам - про ПИР, ПНР и не только...
 
Sane4kaДата: Пятница, 13.01.2017, 09:33 | Сообщение # 36
Мисс Март 2012
Апатиты
Награды:
183  
Группа: Модераторы
Город: Апатиты
Сообщений: 5572
Репутация: 228
Статус: Offline

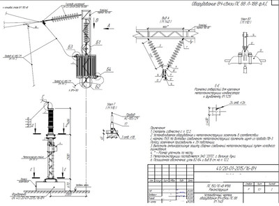
1 - ВЧ заградитель
2 - конденсатор связи
3- разъединитель
4 - фильтр
Прикрепления: 2245006.jpg (216.4 Kb)
 
Sane4kaДата: Пятница, 13.01.2017, 09:37 | Сообщение # 37
Мисс Март 2012
Апатиты
Награды:
183  
Группа: Модераторы
Город: Апатиты
Сообщений: 5572
Репутация: 228
Статус: Offline
Я конденсатор расценила по
Цитата abk63 ()
ФЕРм08-01-025-29
и правильно думала, что разъединитель там учтен.
Фильтр по м8-3-545-1, ВЧ-заградитель по м8-01-020-03
И ещё есть у меня ВЧ-заградитель на опоре.

Цитата abk63 ()
эта расценка не предназначена для установки оборудования ВЧ связи на ОРУ.
про какую расценку речь?
 
abk63Дата: Пятница, 13.01.2017, 10:40 | Сообщение # 38
Сметчик
Оренбург
Награды:
413  
Группа: Проверенные
Город: Оренбург
Сообщений: 20514
Репутация: 740
Статус: Offline
Цитата Sane4ka ()
про какую расценку речь?
Цитата Sane4ka ()
Фильтр по м8-3-545-1
Цитата Sane4ka ()
у меня ВЧ-заградитель на опоре
учтен
Цитата Sane4ka ()
ФЕРм08-01-025-29
по данному чертежу
Цитата abk63 ()
ФЕРм08-01-025-29 где учтен заградитель, разъединитель, и фильтр + ФЕРм08-01-017 для конденсатора


Сметная лавка. Беседы о сметах и не только...
Сметный портал в ТГ
Сметчикам - про ПИР, ПНР и не только...
 
Sane4kaДата: Пятница, 13.01.2017, 10:51 | Сообщение # 39
Мисс Март 2012
Апатиты
Награды:
183  
Группа: Модераторы
Город: Апатиты
Сообщений: 5572
Репутация: 228
Статус: Offline
abk63, спасибо.
 
Sane4kaДата: Понедельник, 23.10.2017, 10:34 | Сообщение # 40
Мисс Март 2012
Апатиты
Награды:
183  
Группа: Модераторы
Город: Апатиты
Сообщений: 5572
Репутация: 228
Статус: Offline
Монтаж приемопередатчика ПВЗУ-Е взяла по расценке ТЕРм 11-4-8-3. Надо ли отдельно расценивать монтаж резистора, блока ПН и блока БП-КС, и установку перемычек ПН?
 
Sane4kaДата: Вторник, 24.10.2017, 09:54 | Сообщение # 41
Мисс Март 2012
Апатиты
Награды:
183  
Группа: Модераторы
Город: Апатиты
Сообщений: 5572
Репутация: 228
Статус: Offline
Вчера было высказано мнение, что по м11 приемопередатчик ценить не комильфо. В одной из смет нашла вариант для приемопередатчика ПВ3-90М1 по м8-3-572-3. Если брать по этой расценке, то дополнительно нужно брать только подключение жил кабелей?! Или еще нужно учесть блоки ПН и БП? есть вариант м10-1-3-6
Настройки по м10 в примере сметы нет, есть ПНР по п1-4-74, 1-4-75, 1-4-77
Подскажите и объясните, пожалуйста, как расценивать
Цитата Sane4ka ()
риемопередатчик ПВЗУ-Е
 
шантальДата: Вторник, 24.10.2017, 10:09 | Сообщение # 42
Генерал-майор
Москва
Награды:
41  
Группа: Проверенные
Город: Москва
Сообщений: 284
Репутация: 96
Статус: Offline
Sane4ka, он такой у вас?

http://www.promen.ru/pvzu-e.htm
 
Sane4kaДата: Вторник, 24.10.2017, 10:10 | Сообщение # 43
Мисс Март 2012
Апатиты
Награды:
183  
Группа: Модераторы
Город: Апатиты
Сообщений: 5572
Репутация: 228
Статус: Offline
шанталь, да
 
шантальДата: Вторник, 24.10.2017, 11:17 | Сообщение # 44
Генерал-майор
Москва
Награды:
41  
Группа: Проверенные
Город: Москва
Сообщений: 284
Репутация: 96
Статус: Offline
Sane4ka, я бы посмотрела расценки 1 отдела - Шкаф управления или регулирования  - в ту сторону

хотя возможно Алексей (АБК63) даст более правильный вариант
 
veronika-2Дата: Вторник, 24.10.2017, 11:25 | Сообщение # 45
Генералиссимус
Ростов-на-Дону
Награды:
449  
Группа: Модераторы
Город: Ростов-на-Дону
Сообщений: 21653
Репутация: 809
Статус: Offline
Цитата шанталь ()
Шкаф управления или регулирования

а что приемопередатчик регулирует или чем управляет?


Психологические консультации онлайн.
Мой телеграмм
https://t.me/psyrnd2023
Вконтакте
https://vk.com/public214093226
 
  • Страница 3 из 5
  • «
  • 1
  • 2
  • 3
  • 4
  • 5
  • »
Поиск:

Сервисы



Телеграмм чат


Администратор
icq: 264-585-675
e-mail: andreyka_s@list.ru
web: www.semushin.name


Согласно п. 4.5 Правил Сметного портала запрещено размещение материалов попадающих под действие Статьи 1259 и Статьи 1270 ГК РФ, на которые распространяются авторские права правообладателя, без согласования с ним. В случае обнаружения материалов нарушающих права правообладателя просим сообщить через форму обратной связи.
Семушин А.А.
Яндекс.Метрика