Каркас из уголка на кровле
lollie661 Дата: Среда, 15.01.2014, 16:58 | Сообщение # 1
Рядовой
Казань
Группа: Проверенные
Город: Казань
Сообщений: 10
Репутация:
0
Статус: Offline
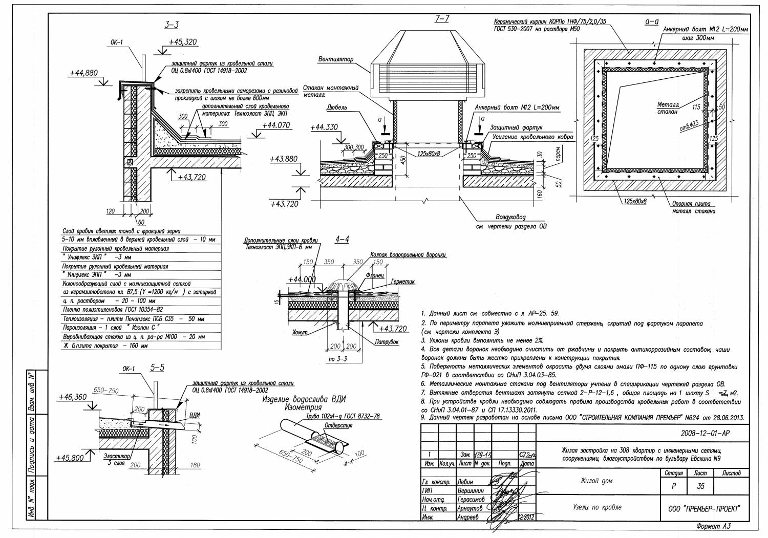
Уважаемые сметчики! Я начинающий сметчик, помогите, пожалуйста, разобраться! Как мне учесть уголок 125х80х8 (чертеж в приложении). Не знаю даже как называется эта конструкция - сказали что это опора под вентилятор. Какую расценку применить? Прикрепила чертеж.
veronika-2 Дата: Среда, 15.01.2014, 17:00 | Сообщение # 2
Генералиссимус
Ростов-на-Дону
Группа: Модераторы
Город: Ростов-на-Дону
Сообщений: 21653
Репутация:
809
Статус: Offline
lollie661 , как вариант - 20 сб кронштейны под оборудование
Психологические консультации онлайн. Мой телеграмм https://t.me/psyrnd2023 Вконтакте https://vk.com/public214093226
Tanja55 Дата: Среда, 15.01.2014, 17:01 | Сообщение # 3
Генералиссимус
Санкт-Петербург
Группа: Проверенные
Город: Санкт-Петербург
Сообщений: 11323
Репутация:
339
Статус: Offline
Цитата lollie661 (
)
сказали что это опора под вентилятор
20 сб - установка кронштейнов под вентиляционное оборудование Добавлено (15.01.2014, 17:01) --------------------------------------------- veronika-2 ,
Работаю в программе А0
Сообщение отредактировал Tanja55 - Среда, 15.01.2014, 17:01
veronika-2 Дата: Среда, 15.01.2014, 17:01 | Сообщение # 4
Генералиссимус
Ростов-на-Дону
Группа: Модераторы
Город: Ростов-на-Дону
Сообщений: 21653
Репутация:
809
Статус: Offline
Tanja55 , и таки одновременно...
Психологические консультации онлайн. Мой телеграмм https://t.me/psyrnd2023 Вконтакте https://vk.com/public214093226
lollie661 Дата: Среда, 15.01.2014, 17:02 | Сообщение # 5
Рядовой
Казань
Группа: Проверенные
Город: Казань
Сообщений: 10
Репутация:
0
Статус: Offline
veronika-2 , спасибо большое, посмотрю! Меня просто смутил молниеприемный стержень. Он ведь никакого отношения к уголку не имеет?Добавлено (15.01.2014, 17:02) ---------------------------------------------Tanja55 , Спасибо!
Tanja55 Дата: Среда, 15.01.2014, 17:05 | Сообщение # 6
Генералиссимус
Санкт-Петербург
Группа: Проверенные
Город: Санкт-Петербург
Сообщений: 11323
Репутация:
339
Статус: Offline
Цитата lollie661 (
)
Меня просто смутил молниеприемный стержень
а молниеприемник расценить можно отдельно
Работаю в программе А0
veronika-2 Дата: Среда, 15.01.2014, 17:07 | Сообщение # 7
Генералиссимус
Ростов-на-Дону
Группа: Модераторы
Город: Ростов-на-Дону
Сообщений: 21653
Репутация:
809
Статус: Offline
Цитата lollie661 (
)
Он ведь никакого отношения к уголку не имеет?
нет. это по м08 расценивается.Добавлено (15.01.2014, 17:07) ---------------------------------------------Tanja55 , фэйспалм... словами, смайлик найти не могу )))
Психологические консультации онлайн. Мой телеграмм https://t.me/psyrnd2023 Вконтакте https://vk.com/public214093226
Tanja55 Дата: Среда, 15.01.2014, 17:13 | Сообщение # 8
Генералиссимус
Санкт-Петербург
Группа: Проверенные
Город: Санкт-Петербург
Сообщений: 11323
Репутация:
339
Статус: Offline
Работаю в программе А0
Сообщение отредактировал Tanja55 - Среда, 15.01.2014, 17:15
veronika-2 Дата: Среда, 15.01.2014, 17:15 | Сообщение # 9
Генералиссимус
Ростов-на-Дону
Группа: Модераторы
Город: Ростов-на-Дону
Сообщений: 21653
Репутация:
809
Статус: Offline
Tanja55 , пардон... это вот это... привыкаю к интернетному слэнгу. ну а проще - опять в изумлении )
Психологические консультации онлайн. Мой телеграмм https://t.me/psyrnd2023 Вконтакте https://vk.com/public214093226