Приветствую Вас Гость :: RSS :: Понедельник :: 23.02.2026 ::
Реклама на сайте
Меню портала

Форма входа

Мини-чат

[ Новые сообщения · Участники · Правила форума · Поиск · RSS ]

  • Страница 1 из 2
  • 1
  • 2
  • »
Площадь стен на лестничном марше
InnarДата: Пятница, 14.05.2010, 21:32 | Сообщение # 1
Подполковник
Томск
Награды:
2  
Группа: Проверенные
Город: Томск
Сообщений: 120
Репутация: 0
Статус: Offline
Как определить правильно площадь стен на лестничном марше?
 
Tanja55Дата: Суббота, 15.05.2010, 01:09 | Сообщение # 2
Генералиссимус
Санкт-Петербург
Награды:
342  
Группа: Проверенные
Город: Санкт-Петербург
Сообщений: 11323
Репутация: 339
Статус: Offline
Innar, если точно надо, то по прямоугольникам, если +-% то площадь трапеции взять можно


Работаю в программе А0
 
slavalitДата: Суббота, 15.05.2010, 05:25 | Сообщение # 3
Инженер-сметчик
Симферополь
Награды:
258  
Группа: Модераторы
Город: Симферополь
Сообщений: 7568
Репутация: 249
Статус: Offline
Quote (Innar)
Как определить правильно площадь стен на лестничном марше?

Может всё-таки на лестничной клетке? Какие могут быть стены у маршей? Или нужно площадь торцов лестничных маршей посчитать?

Вот это лестничный марш:

 
InnarДата: Суббота, 15.05.2010, 10:32 | Сообщение # 4
Подполковник
Томск
Награды:
2  
Группа: Проверенные
Город: Томск
Сообщений: 120
Репутация: 0
Статус: Offline
ладно понятно с маршем, а стены как?
 
slavalitДата: Суббота, 15.05.2010, 11:43 | Сообщение # 5
Инженер-сметчик
Симферополь
Награды:
258  
Группа: Модераторы
Город: Симферополь
Сообщений: 7568
Репутация: 249
Статус: Offline
Quote (Innar)
ладно понятно с маршем, а стены как?

как обычно... длину на высоту smile
 
veronikaДата: Суббота, 15.05.2010, 12:14 | Сообщение # 6
Генералиссимус
Волгодонск
Награды:
379  
Группа: Модераторы
Город: Волгодонск
Сообщений: 12793
Репутация: 332
Статус: Offline
Quote (slavalit)
как обычно... длину на высоту

хороший вопрос... slavalit, там ведь параллелепипед будет... а его площадь считается по другому, нежели длину на высоту... smile


"Хочешь усложнить себе жизнь, начни верить людям."
"Трудно найти черную кошку в темной комнате, особенно если ее там нет"
(работаю в Гранд-смете 5.5.4, 6.0.1)
 
slavalitДата: Суббота, 15.05.2010, 12:20 | Сообщение # 7
Инженер-сметчик
Симферополь
Награды:
258  
Группа: Модераторы
Город: Симферополь
Сообщений: 7568
Репутация: 249
Статус: Offline
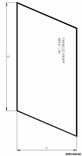
Quote (veronika)
параллелепипед будет... а его площадь считается по другому, нежели длину на высоту...

параллелограмм... площадь параллелограмма = длина х высоту smile

Прикрепления: 3986894.jpg (25.1 Kb)
 
veronikaДата: Суббота, 15.05.2010, 12:32 | Сообщение # 8
Генералиссимус
Волгодонск
Награды:
379  
Группа: Модераторы
Город: Волгодонск
Сообщений: 12793
Репутация: 332
Статус: Offline
Quote (slavalit)

параллелограмм... площадь параллелограмма = длина х высоту

с параллелограмом согласна - попутала названия... sad и все-таки - площадь в данном случае будет равна длина горизонтальной проекции марша (та которая по плану) умноженная на высоту от пола до потолка.

Добавлено (15.05.2010, 12:32)
---------------------------------------------
slavalit, уже поправила свои измышления... smile



"Хочешь усложнить себе жизнь, начни верить людям."
"Трудно найти черную кошку в темной комнате, особенно если ее там нет"
(работаю в Гранд-смете 5.5.4, 6.0.1)


Сообщение отредактировал veronika - Суббота, 15.05.2010, 12:32
 
slavalitДата: Суббота, 15.05.2010, 12:33 | Сообщение # 9
Инженер-сметчик
Симферополь
Награды:
258  
Группа: Модераторы
Город: Симферополь
Сообщений: 7568
Репутация: 249
Статус: Offline
Quote (veronika)
с параллелограмом согласна - попутала названия... sad а высота все-таки будет высотой этажа. главное еще длину основания не принять как длину горизонтальной трапеции - на планах показана именно она...

высота - высота этажа
длина - длина горизонтальной проекции лестничного марша
 
о-xoДата: Суббота, 15.05.2010, 12:38 | Сообщение # 10
Генерал-лейтенант
Таганрог
Награды:
71  
Группа: Проверенные
Город: Таганрог
Сообщений: 748
Репутация: 33
Статус: Offline
а первый и последний этажи? они же не параллелограмм дают?
 
veronikaДата: Суббота, 15.05.2010, 12:40 | Сообщение # 11
Генералиссимус
Волгодонск
Награды:
379  
Группа: Модераторы
Город: Волгодонск
Сообщений: 12793
Репутация: 332
Статус: Offline
о-xo, почему? на длину марша высчитываем по площади параллелограма... а далее - уже как прямоугольник...


"Хочешь усложнить себе жизнь, начни верить людям."
"Трудно найти черную кошку в темной комнате, особенно если ее там нет"
(работаю в Гранд-смете 5.5.4, 6.0.1)
 
о-xoДата: Суббота, 15.05.2010, 12:48 | Сообщение # 12
Генерал-лейтенант
Таганрог
Награды:
71  
Группа: Проверенные
Город: Таганрог
Сообщений: 748
Репутация: 33
Статус: Offline
veronika, неа...блин, забыла как фигура называется...в общем так-же как slavalit, нарисовал, но верхняя сторона горизонтальная...
 
Tanja55Дата: Суббота, 15.05.2010, 12:48 | Сообщение # 13
Генералиссимус
Санкт-Петербург
Награды:
342  
Группа: Проверенные
Город: Санкт-Петербург
Сообщений: 11323
Репутация: 339
Статус: Offline
не пойму только зачем стену одного марша считать, не проще ли площадь стен лестничной клетки? или у автора темы смета на окраску 1 этажа?


Работаю в программе А0
 
veronikaДата: Суббота, 15.05.2010, 12:51 | Сообщение # 14
Генералиссимус
Волгодонск
Награды:
379  
Группа: Модераторы
Город: Волгодонск
Сообщений: 12793
Репутация: 332
Статус: Offline
Quote (о-xo)
но верхняя сторона горизонтальная...

как это? wacko я конечно понимаю, то, о чем вы говорите - это трапеция. просто не пойму какой у вас дом, что на первом этаже у вас так...


"Хочешь усложнить себе жизнь, начни верить людям."
"Трудно найти черную кошку в темной комнате, особенно если ее там нет"
(работаю в Гранд-смете 5.5.4, 6.0.1)
 
о-xoДата: Суббота, 15.05.2010, 12:53 | Сообщение # 15
Генерал-лейтенант
Таганрог
Награды:
71  
Группа: Проверенные
Город: Таганрог
Сообщений: 748
Репутация: 33
Статус: Offline
veronika, так на верхнем...только что в коридор выглядывала, ибо на верхнем и живу...
 
  • Страница 1 из 2
  • 1
  • 2
  • »
Поиск:

Сервисы



Телеграмм чат


Администратор
icq: 264-585-675
e-mail: andreyka_s@list.ru
web: www.semushin.name


Согласно п. 4.5 Правил Сметного портала запрещено размещение материалов попадающих под действие Статьи 1259 и Статьи 1270 ГК РФ, на которые распространяются авторские права правообладателя, без согласования с ним. В случае обнаружения материалов нарушающих права правообладателя просим сообщить через форму обратной связи.
Семушин А.А.
Яндекс.Метрика