Приветствую Вас Гость :: RSS :: Понедельник :: 19.01.2026 ::
Реклама на сайте
Меню портала

Форма входа

Мини-чат

[ Новые сообщения · Участники · Правила форума · Поиск · RSS ]

  • Страница 1 из 1
  • 1
Пожарное депо
annabДата: Понедельник, 19.09.2016, 12:16 | Сообщение # 1
Рядовой
Красноярск
Награды:
0  
Группа: Проверенные
Город: Красноярск
Сообщений: 17
Репутация: 0
Статус: Offline
Добрый день!
Извините заранее если будут глупые вопросы, я энергетик и вот с депо первый раз сталкиваюсь.
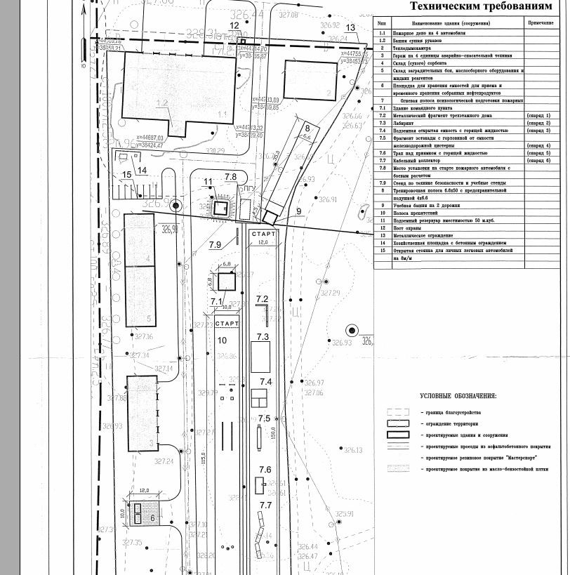
Надо составить смету на ПИР на пожарное депо. Что в него входит я приложу во вложении файлик. Единственное что я нашла так это по СБЦ Объекты нефтеперер.промыш. (2004г)  п.1.55 Пожарное депо с количеством автомашин от 2 до 4, но так же понять не могу, что в ходит в комплекс этой расценки так как в тех части не написано. Надо ли отдельно осмечивать сооружение помимо позиции 1.1. (во вложении)? Спасибо
Прикрепления: 7720726.jpg (158.4 Kb)
 
artems563Дата: Вторник, 20.09.2016, 09:57 | Сообщение # 2
Генералиссимус
Уфа
Награды:
60  
Группа: Проверенные
Город: Уфа
Сообщений: 1620
Репутация: 85
Статус: Offline
annab, СБЦ 2004 не действует. Смотрите новый СБЦ 2015 г.

дополнительно бы взял:
3. Гараж по СБЦ предпрития автомобильного транспорта
4-6
7-10 - где то в каком-то СБЦ был учебный полигон, поищите
11-для чего резервуар? аварийный запас воды?
12 - как КПП
15 - по СБЦ предприятия автомобильного транспорта

Но это все так, на глаз и по опыту. Что действительно учтено расценкой можно узнать если только направить запрос в ЦИП. И то не факт.


Это "ж-ж-ж" неспроста... (Винни-Пух)
 
Марина5941Дата: Вторник, 20.09.2016, 14:32 | Сообщение # 3
Подполковник
Альметьевск
Награды:
6  
Группа: Проверенные
Город: Альметьевск
Сообщений: 148
Репутация: 9
Статус: Offline
Были нормы по проектированию - НПБ 101-95, не знаю про актуализацию, поищите в ин-те.
Мы в свое время спорили с разработчиком СБЦ - ВНИПИнефть - по составу проектируемого ими пож.депо.  Они согласились тогда с тем, что ценами учтен  состав пож.депо  согласно НПБ
 
u0007581Дата: Вторник, 20.09.2016, 14:53 | Сообщение # 4
Подполковник
Награды:
10  
Группа: Проверенные
Сообщений: 112
Репутация: 17
Статус: Offline
Цитата artems563 ()
дополнительно бы взял:
artems563, а что же тогда учтено непосредственно расценкой на пожарное депо из таблицы №8  СПБЦ Объекты нефтеперерабатывающей и нефтехимической промышленности 2015г.?!


Сообщение отредактировал u0007581 - Вторник, 20.09.2016, 14:53
 
artems563Дата: Вторник, 20.09.2016, 15:01 | Сообщение # 5
Генералиссимус
Уфа
Награды:
60  
Группа: Проверенные
Город: Уфа
Сообщений: 1620
Репутация: 85
Статус: Offline
Цитата u0007581 ()
таблицы №8  СПБЦ Объекты нефтеперерабатывающей и нефтехимической промышленности 2015г.?!

по моим ощущениям только здание пождепо. вопрос к ЦИПу.
Но могу предугадать ответ: расценкой учтено все, что необходимо для полноценного функционирования объекта.


Это "ж-ж-ж" неспроста... (Винни-Пух)
 
  • Страница 1 из 1
  • 1
Поиск:

Сервисы



Телеграмм чат


Администратор
icq: 264-585-675
e-mail: andreyka_s@list.ru
web: www.semushin.name


Согласно п. 4.5 Правил Сметного портала запрещено размещение материалов попадающих под действие Статьи 1259 и Статьи 1270 ГК РФ, на которые распространяются авторские права правообладателя, без согласования с ним. В случае обнаружения материалов нарушающих права правообладателя просим сообщить через форму обратной связи.
Семушин А.А.
Яндекс.Метрика