Приветствую Вас Гость :: RSS :: Четверг :: 23.04.2026 ::
Реклама на сайте
Меню портала

Форма входа

Мини-чат

[ Новые сообщения · Участники · Правила форума · Поиск · RSS ]

  • Страница 1 из 1
  • 1
температурные вкладыши (термовставки) в перекрытии
MasyaSvetДата: Понедельник, 29.05.2017, 11:16 | Сообщение # 1
Генерал-майор
Владивосток
Награды:
0  
Группа: Проверенные
Город: Владивосток
Сообщений: 304
Репутация: 0
Статус: Offline
Здравствуйте. Утепление перекрытия термовставками по какой расценки лучше взять?  ТЕР26-01-039-01 склоняюсь к ней...
 
veronika-2Дата: Понедельник, 29.05.2017, 11:42 | Сообщение # 2
Генералиссимус
Ростов-на-Дону
Награды:
449  
Группа: Модераторы
Город: Ростов-на-Дону
Сообщений: 21653
Репутация: 809
Статус: Offline
MasyaSvet, по правильной. вопрос задайте нормально, с картинками - узлы, чертеж


Психологические консультации онлайн.
Мой телеграмм
https://t.me/psyrnd2023
Вконтакте
https://vk.com/public214093226
 
MasyaSvetДата: Понедельник, 29.05.2017, 15:59 | Сообщение # 3
Генерал-майор
Владивосток
Награды:
0  
Группа: Проверенные
Город: Владивосток
Сообщений: 304
Репутация: 0
Статус: Offline
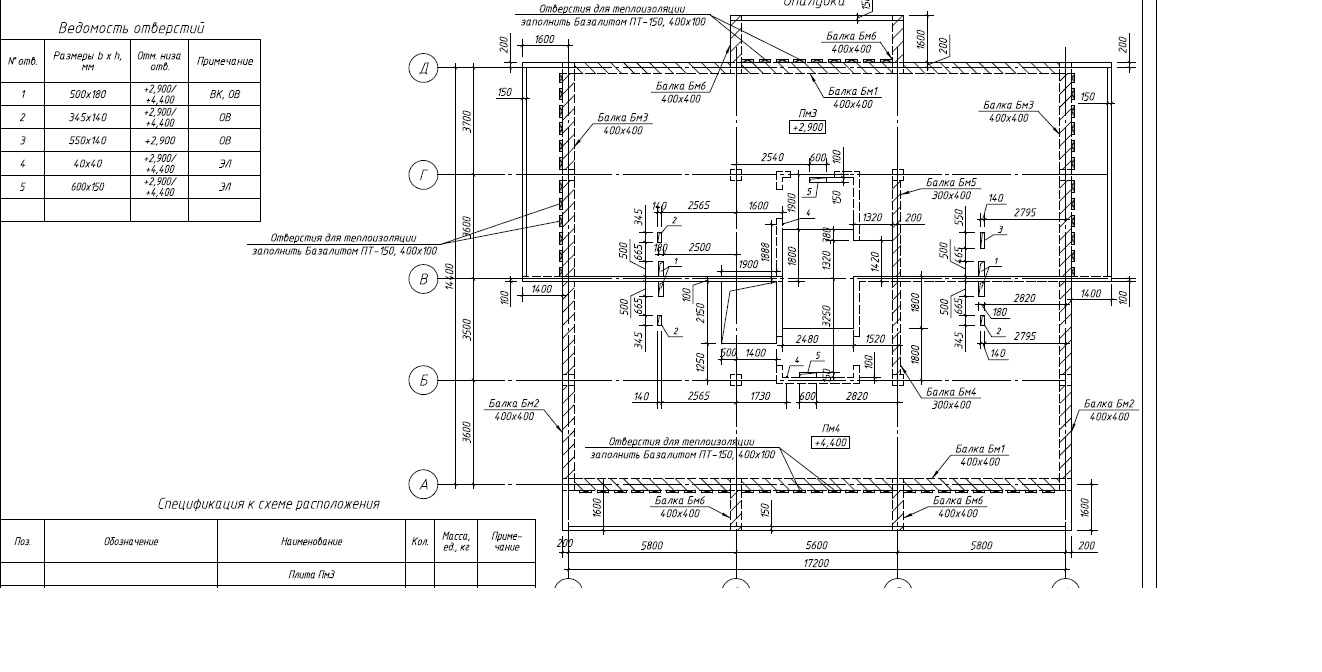
На схеме отверстия для теплоизоляции указаны
Прикрепления: 5175431.jpg (196.5 Kb)
 
veronika-2Дата: Понедельник, 29.05.2017, 16:02 | Сообщение # 4
Генералиссимус
Ростов-на-Дону
Награды:
449  
Группа: Модераторы
Город: Ростов-на-Дону
Сообщений: 21653
Репутация: 809
Статус: Offline
MasyaSvet, непонятна технология по вашему чертежу. 7 сб не смотрели?


Психологические консультации онлайн.
Мой телеграмм
https://t.me/psyrnd2023
Вконтакте
https://vk.com/public214093226
 
MasyaSvetДата: Вторник, 30.05.2017, 00:30 | Сообщение # 5
Генерал-майор
Владивосток
Награды:
0  
Группа: Проверенные
Город: Владивосток
Сообщений: 304
Репутация: 0
Статус: Offline
Да не тут как раз все понятно с технологией. Вот на сайте еще описание нашла http://www.monper.ru/story/see99.html 

Добавлено (30.05.2017, 00:30)
---------------------------------------------

Цитата veronika-2 ()
MasyaSvet, непонятна технология по вашему чертежу. 7 сб не смотрели?
Нет. так как у меня монолит и там вроде утепления нет. ИЛИ я ошибаюсь...
 
veronika-2Дата: Вторник, 30.05.2017, 08:06 | Сообщение # 6
Генералиссимус
Ростов-на-Дону
Награды:
449  
Группа: Модераторы
Город: Ростов-на-Дону
Сообщений: 21653
Репутация: 809
Статус: Offline
MasyaSvet, ссылка не открывается.
Цитата MasyaSvet ()
Нет. так как у меня монолит и там вроде утепления нет. ИЛИ я ошибаюсь

ошибаетесь. там есть деформационные швы. но в принципе и ваша расценка применима.


Психологические консультации онлайн.
Мой телеграмм
https://t.me/psyrnd2023
Вконтакте
https://vk.com/public214093226
 
MasyaSvetДата: Вторник, 30.05.2017, 15:46 | Сообщение # 7
Генерал-майор
Владивосток
Награды:
0  
Группа: Проверенные
Город: Владивосток
Сообщений: 304
Репутация: 0
Статус: Offline
Премного благодарна!  thumb
 
  • Страница 1 из 1
  • 1
Поиск:

Сервисы



Телеграмм чат


Администратор
icq: 264-585-675
e-mail: andreyka_s@list.ru
web: www.semushin.name


Согласно п. 4.5 Правил Сметного портала запрещено размещение материалов попадающих под действие Статьи 1259 и Статьи 1270 ГК РФ, на которые распространяются авторские права правообладателя, без согласования с ним. В случае обнаружения материалов нарушающих права правообладателя просим сообщить через форму обратной связи.
Семушин А.А.
Яндекс.Метрика