Приветствую Вас Гость :: RSS :: Вторник :: 11.11.2025 ::
Реклама на сайте
Меню портала

Форма входа

Мини-чат

[ Новые сообщения · Участники · Правила форума · Поиск · RSS ]

  • Страница 1 из 1
  • 1
Пусконаладочные работы теплообменников
МирусяДата: Вторник, 01.03.2011, 06:11 | Сообщение # 1
Рядовой
Новосибирск
Награды:
0  
Группа: Пользователи
Город: Новосибирск
Сообщений: 3
Репутация: 0
Статус: Offline
Здравствуйте! Смета составлена на монтаж тепломеханического оборудования ГВС в ИТП .В состав входят теплообменники,циркуляционные насосы ,регуляторы температуры ГВС,балансировочные клапаны ,вместе с обвязкой. Требуется произвести пусконаладочные работы тепломеханического оборудования , мы применяем рассценку ТЕРп07-03-041 . Заказчик против этой рассценки и предлагает свою ТЕРп07-10-012, мотивируя это тем ,что наша рассценка относится к котельным. Мы считаем ,что рассценка ТЕРп07-10-012 это пусконаладка на всю систему отопления здания.
 
FSVДата: Вторник, 01.03.2011, 15:59 | Сообщение # 2
Лейтенант
Балаково
Награды:
27  
Группа: Проверенные
Город: Балаково
Сообщений: 42
Репутация: 11
Статус: Offline
Мируся, ТЕРп07-03-041 действительно относиться к котельному оборудованию....
 
кодировщикДата: Вторник, 01.03.2011, 16:27 | Сообщение # 3
Генералиссимус
Санкт-Петербург
Награды:
43  
Группа: Проверенные
Город: Санкт-Петербург
Сообщений: 1752
Репутация: 50
Статус: Offline
Мируся, заказчик прав! Ведь не будете же Вы выполнять ПНР системы ГВС в ИТП 295 чел/час... biggrin biggrin biggrin
Да и
Quote (Мируся)
предлагает свою ТЕРп07-10-012

тоже неправильно, т.к.
Quote (Мируся)
ТЕРп07-10-012 это пусконаладка на всю систему отопления здания.

Если у Вас автоматизированный ИТП, остается одно: ТЕРп2- wink


Работаю в А0
 
abk63Дата: Среда, 02.03.2011, 03:14 | Сообщение # 4
Сметчик
Оренбург
Награды:
413  
Группа: Проверенные
Город: Оренбург
Сообщений: 20512
Репутация: 740
Статус: Offline
Quote (кодировщик)
Если у Вас автоматизированный ИТП, остается одно: ТЕРп2- wink

этим только автоматику можно отрегулировать
ТЕРп1 - для электродвигателей насосов и приводов
ТЕРп07-10-012 - для гидравлики.
Зацепился бы за слова в составе работ, которые в теплопункте должны выполняться я думаю:
- Выявление фактического режима работы теплового пункта и теплопотребляющего оборудования.
- Расчет относительных расходов воды по каждой потребляющей установке и в целом по системе.
- Корректировка дроссельных диафрагм. и т.д.

Другое дело, что там и другие системы теплопотребления завязаны (отопление, вентиляция). Потому, убрал бы какой-то % на них. По договоренности с заказчиком (который в данном случае пропускает ее полностью).



Сметная лавка. Беседы о сметах и не только...
Сметный портал в ТГ
Сметчикам - про ПИР, ПНР и не только...
 
МирусяДата: Среда, 02.03.2011, 13:51 | Сообщение # 5
Рядовой
Новосибирск
Награды:
0  
Группа: Пользователи
Город: Новосибирск
Сообщений: 3
Репутация: 0
Статус: Offline
Здравствуйте , на сегодня договорились полностью рассценка ТЕРп07-10-012 . Спасибо.
 
МаксимусДата: Четверг, 17.10.2024, 18:33 | Сообщение # 6
Снегурочка 2012
Москва
Награды:
48  
Группа: Проверенные
Город: Москва
Сообщений: 1164
Репутация: 48
Статус: Offline
Цитата abk63 ()
ТЕРп1 - для электродвигателей насосов и приводов
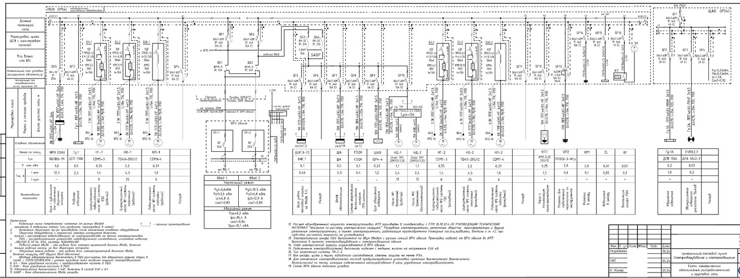
Алексей, подскажите пожалуйста, корректно ли определять стоимость ПНР по ГЭСНп 01-05-017-02 =4шт. и ГЭСНп 01-05-018-01=2шт. согласно этой схеме?
Прикрепления: 3690291.jpg (255.8 Kb)


Сообщение отредактировал Максимус - Четверг, 17.10.2024, 19:14
 
abk63Дата: Пятница, 18.10.2024, 07:34 | Сообщение # 7
Сметчик
Оренбург
Награды:
413  
Группа: Проверенные
Город: Оренбург
Сообщений: 20512
Репутация: 740
Статус: Offline
Цитата Максимус ()
ГЭСНп 01-05-017-02 =4шт. и ГЭСНп 01-05-018-01=2шт.
это расценки на ПНР АВР и на схеме оно всего одно. основное - это ПНР автоматов, фазировка линий и т.д.


Сметная лавка. Беседы о сметах и не только...
Сметный портал в ТГ
Сметчикам - про ПИР, ПНР и не только...
 
МаксимусДата: Пятница, 18.10.2024, 08:50 | Сообщение # 8
Снегурочка 2012
Москва
Награды:
48  
Группа: Проверенные
Город: Москва
Сообщений: 1164
Репутация: 48
Статус: Offline
Цитата abk63 ()
это расценки на ПНР АВР и на схеме оно всего одно. основное - это ПНР автоматов, фазировка линий и т.д.
Спасибо, Алексей, я предположила, что это некорректно, а этот единственный АВР на ввод надо как-то проверять и если да, то по каким расценкам?
И частотники тоже неверно?
 
abk63Дата: Пятница, 18.10.2024, 13:20 | Сообщение # 9
Сметчик
Оренбург
Награды:
413  
Группа: Проверенные
Город: Оренбург
Сообщений: 20512
Репутация: 740
Статус: Offline
АВР ГЭСНп01-05-015-02
частотники ГЭСНп01-08-022-04
а вообще вступайте в группу сюда https://t.me/pir_i_pnr на форум редко уже заходим...


Сметная лавка. Беседы о сметах и не только...
Сметный портал в ТГ
Сметчикам - про ПИР, ПНР и не только...
 
МаксимусДата: Пятница, 18.10.2024, 13:38 | Сообщение # 10
Снегурочка 2012
Москва
Награды:
48  
Группа: Проверенные
Город: Москва
Сообщений: 1164
Репутация: 48
Статус: Offline
Цитата abk63 ()
АВР ГЭСНп01-05-015-02частотники ГЭСНп01-08-022-04
а вообще вступайте в группу сюда https://t.me/pir_i_pnr на форум редко уже заходим...
Спасибо, Алексей, присоединюсь с удовольствием  wink
 
  • Страница 1 из 1
  • 1
Поиск:

Сервисы



Телеграмм чат


Администратор
icq: 264-585-675
e-mail: [email protected]
web: www.semushin.name


Согласно п. 4.5 Правил Сметного портала запрещено размещение материалов попадающих под действие Статьи 1259 и Статьи 1270 ГК РФ, на которые распространяются авторские права правообладателя, без согласования с ним. В случае обнаружения материалов нарушающих права правообладателя просим сообщить через форму обратной связи.
Семушин А.А.
Яндекс.Метрика