Приветствую Вас Гость :: RSS :: Четверг :: 09.04.2026 ::
Реклама на сайте
Меню портала

Форма входа

Мини-чат

[ Новые сообщения · Участники · Правила форума · Поиск · RSS ]

  • Страница 1 из 1
  • 1
Фундамент в чертежах
naduxaДата: Четверг, 25.03.2010, 10:04 | Сообщение # 1
Полковник
Санкт-Петербург
Награды:
13  
Группа: Проверенные
Город: Санкт-Петербург
Сообщений: 218
Репутация: 18
Статус: Offline
Здравствуйте, как воздух нужны грамотные советы, как правильно составить смету по чертежам. Честно признаюсь, обычно давали объемы и я искала расценки, а тут заболел инженер и я у разбитого корыта. И огромная просьба, не надо меня ругать и объяснять, что сметчик должен сам уметь это делать, сама знаю и очень хочу научится. ой не прикрепилось, сейчас, сейчас. Все, рухнулы надежды и мечты, не прикрепляется файл. smile Получилось!
Прикрепления: 8735966.jpg (139.0 Kb) · 8755975.jpg (216.5 Kb) · 0413343.jpg (128.7 Kb)


Спасибо за Васю!

Сообщение отредактировал naduxa - Четверг, 25.03.2010, 10:14
 
MONGRELДата: Четверг, 25.03.2010, 11:15 | Сообщение # 2
Полковник
Награды:
26  
Группа: Заблокированные
Сообщений: 213
Репутация: 8
Статус: Offline
Здравствуйте! Работать по объемам бетона нужно с опалубочными чертежами! Там указана вся геометрия!
 
ffnsДата: Четверг, 25.03.2010, 11:59 | Сообщение # 3
Генералиссимус
Награды:
29  
Группа: Проверенные
Сообщений: 1768
Репутация: 24
Статус: Offline
Quote (naduxa)
Здравствуйте, как воздух нужны грамотные советы, как правильно составить смету по чертежам. Честно признаюсь, обычно давали объемы и я искала расценки, а тут заболел инженер и я у разбитого корыта. И огромная просьба, не надо меня ругать и объяснять, что сметчик должен сам уметь это делать, сама знаю и очень хочу научится. ой не прикрепилось, сейчас, сейчас. Все, рухнулы надежды и мечты, не прикрепляется файл. smile Получилось!

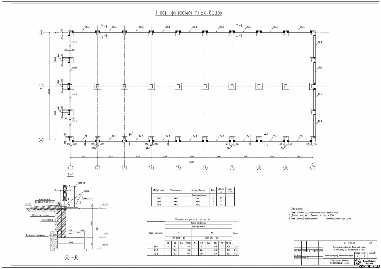
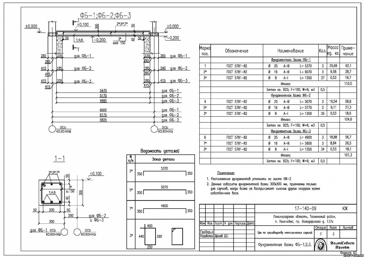
1. Попробуйте начать с листа №3.

-там у Вас монолитные ж/б балки ФБ-1,2,3. (т.е. 6-й сборник)
-смотрите внимательно таблицу там приводится расход бетона и арматуры на 1 штуку каждой балки ФБ-1,2,3.
-смотрите по составу работ (в сборнике) и "цепляйте" все, что по Вашему мнению можно включать в смету.
-количество балок (разных) считать на листе №2.

2. Земляные работы есть?
-если есть тогда основная информация по листу№1 разрез 1-1
+ общий вид(там же).

3. На листе №4 у Вас монолитная ж/б плита смотрите объем бетона в таблице 250м3 ? (плохо видно), там-же марка и расход арматуры.+ сопутствующие работы.

4. До подхода "основных сил" (инженера) можно работать.
Успехов. smile



Сообщение отредактировал ffns - Четверг, 25.03.2010, 12:00
 
naduxaДата: Четверг, 25.03.2010, 12:01 | Сообщение # 4
Полковник
Санкт-Петербург
Награды:
13  
Группа: Проверенные
Город: Санкт-Петербург
Сообщений: 218
Репутация: 18
Статус: Offline
это начало всех начал, начинайте разносить меня, готова!
Прикрепления: __.rtf (109.2 Kb)


Спасибо за Васю!
 
ffnsДата: Четверг, 25.03.2010, 12:12 | Сообщение # 5
Генералиссимус
Награды:
29  
Группа: Проверенные
Сообщений: 1768
Репутация: 24
Статус: Offline
Quote (naduxa)
это начало всех начал, начинайте разносить меня, готова!
Прикрепления: __.rtf(109Kb)

"Да Вы и сами не промах" - копирайт.
smile

Основа сметы уже практически готова.
Дальше в том же ключе.

 
naduxaДата: Четверг, 25.03.2010, 12:12 | Сообщение # 6
Полковник
Санкт-Петербург
Награды:
13  
Группа: Проверенные
Город: Санкт-Петербург
Сообщений: 218
Репутация: 18
Статус: Offline
ffns, эти разрезы, одно мучение, объясните пожалуйста на пальцах, нужна бетонная подготовка толщ 100 мм из бетона марки В7,5 - это на всю площаль 54*24 или под балки? Что имеено обмазывается битумом???? И какой глубины вырывать котлован????


Спасибо за Васю!
 
ffnsДата: Четверг, 25.03.2010, 12:28 | Сообщение # 7
Генералиссимус
Награды:
29  
Группа: Проверенные
Сообщений: 1768
Репутация: 24
Статус: Offline
Quote (naduxa)
нужна бетонная подготовка толщ 100 мм из бетона марки В7,5 - это на всю площаль 54*24 или под балки? Что имеено обмазывается битумом???? И какой глубины вырывать котлован????

1. Судя по листу №4 разрез 1-1,2-2, подготовка под всю плиту 54*24м.
2.Котлован берется больше чем 54м*24м * глубина примерно 2,4м.
т.е. (54м+1м запас) * (24м+ 1м запас) * 2,4м=3 300м3.

3. Обмазка фундамента стенки с двух сторон.

 
naduxaДата: Четверг, 25.03.2010, 13:36 | Сообщение # 8
Полковник
Санкт-Петербург
Награды:
13  
Группа: Проверенные
Город: Санкт-Петербург
Сообщений: 218
Репутация: 18
Статус: Offline
ffns, не могу сообразить, какой объем песка на обратную засыпку. cry


Спасибо за Васю!
 
NATANДата: Четверг, 25.03.2010, 13:42 | Сообщение # 9
Генералиссимус
Санкт-Петербург
Награды:
34  
Группа: Проверенные
Город: Санкт-Петербург
Сообщений: 2010
Репутация: 23
Статус: Offline
naduxa, у Вас фундамент в м3. Вычтите его из V который отрыли и получите засыпку.
 
naduxaДата: Четверг, 25.03.2010, 13:49 | Сообщение # 10
Полковник
Санкт-Петербург
Награды:
13  
Группа: Проверенные
Город: Санкт-Петербург
Сообщений: 218
Репутация: 18
Статус: Offline
NATAN, это что получается: у меня разработка грунта 3300м3 - 250 м3 плита - 13 м3 фунд.балки = 3037 м3 засыпка песком. Все правильно? sad


Спасибо за Васю!
 
NATANДата: Четверг, 25.03.2010, 13:57 | Сообщение # 11
Генералиссимус
Санкт-Петербург
Награды:
34  
Группа: Проверенные
Город: Санкт-Петербург
Сообщений: 2010
Репутация: 23
Статус: Offline
naduxa, нет, это что-то не то...Вы объём вынимаемого грунта через площадь считали, т.е. S фундамента + S доп (чтобы к фундаменту подойти можно) х на высоту. Вот теперь Sдоп х на высоту фундамента = V засыпки. Что-то так...
 
MONGRELДата: Четверг, 25.03.2010, 14:21 | Сообщение # 12
Полковник
Награды:
26  
Группа: Заблокированные
Сообщений: 213
Репутация: 8
Статус: Offline
http://exkavator.ru/articles/grunt/~id=6432 по этой ссылочке объем земляных работ при отрывке котлована
 
ffnsДата: Четверг, 25.03.2010, 14:52 | Сообщение # 13
Генералиссимус
Награды:
29  
Группа: Проверенные
Сообщений: 1768
Репутация: 24
Статус: Offline
Quote (naduxa)
ffns, не могу сообразить, какой объем песка на обратную засыпку. cry

3 300м3 - объем всего бетона - объем щебня - объем ПЕСКА(на подсыпку под щебень(если есть) = объем обратной засыпки ГРУНТА.

Песок не используют на обратную засыпку! только под основания и вроде того.

 
  • Страница 1 из 1
  • 1
Поиск:

Сервисы



Телеграмм чат


Администратор
icq: 264-585-675
e-mail: andreyka_s@list.ru
web: www.semushin.name


Согласно п. 4.5 Правил Сметного портала запрещено размещение материалов попадающих под действие Статьи 1259 и Статьи 1270 ГК РФ, на которые распространяются авторские права правообладателя, без согласования с ним. В случае обнаружения материалов нарушающих права правообладателя просим сообщить через форму обратной связи.
Семушин А.А.
Яндекс.Метрика