Приветствую Вас Гость :: RSS :: Понедельник :: 29.12.2025 ::
Реклама на сайте
Меню портала

Форма входа

Мини-чат

[ Новые сообщения · Участники · Правила форума · Поиск · RSS ]

  • Страница 1 из 1
  • 1
монтаж дымовой трубы и воздуховода
Marlin1983Дата: Вторник, 14.01.2014, 15:35 | Сообщение # 1
Лейтенант
Рязань
Награды:
0  
Группа: Проверенные
Город: Рязань
Сообщений: 66
Репутация: 0
Статус: Offline
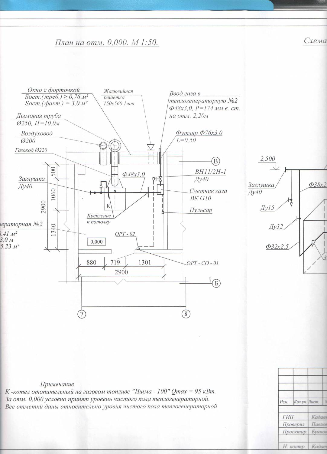
Добрый день. Помогите начинающему сметчику составить смету на монтаж воздуховода и дымовой трубы в теплогенераторных или хотя бы подскажите какие расценки применить. Работаю всего 2 месяца, а с такими работами вообще никогда не встречалась sad На картинках все, что у меня есть.





Прикрепления: 3730598.jpg (132.3 Kb) · 9535506.jpg (133.6 Kb) · 9025067.jpg (124.8 Kb)


Сообщение отредактировал Marlin1983 - Вторник, 14.01.2014, 15:50
 
veronika-2Дата: Вторник, 14.01.2014, 15:38 | Сообщение # 2
Генералиссимус
Ростов-на-Дону
Награды:
449  
Группа: Модераторы
Город: Ростов-на-Дону
Сообщений: 21653
Репутация: 809
Статус: Offline
Marlin1983, попробуйте для начала поработать самостоятельно. существующие темы по поиску
http://cmet4uk.ru/search....amp;t=0
http://cmet4uk.ru/search....amp;t=0
потом уже если что непонятно - спрашивайте


Психологические консультации онлайн.
Мой телеграмм
https://t.me/psyrnd2023
Вконтакте
https://vk.com/public214093226
 
Sane4kaДата: Вторник, 14.01.2014, 15:45 | Сообщение # 3
Мисс Март 2012
Апатиты
Награды:
183  
Группа: Модераторы
Город: Апатиты
Сообщений: 5572
Репутация: 228
Статус: Offline
Marlin1983, уберите из названия темы слова "помогите, составит смету", иначе тему или закрою или перенесу в раздел Работа.
 
Marlin1983Дата: Вторник, 14.01.2014, 16:22 | Сообщение # 4
Лейтенант
Рязань
Награды:
0  
Группа: Проверенные
Город: Рязань
Сообщений: 66
Репутация: 0
Статус: Offline
Цитата veronika-2 ()
Marlin1983, попробуйте для начала поработать самостоятельно. существующие темы по поиску http://cmet4uk.ru/search....amp;t=0 http://cmet4uk.ru/search....amp;t=0 потом уже если что непонятно - спрашивайте
прокладку воздуховодов взять по 20 сборнику в м2 поверхности воздуховода
а дымовую трубу по ТЕР09-06-033-02 "Монтаж труб вытяжных, дымовых и вентиляционных диаметром до 3250 мм из листовой стали высотой до 45 м" в тн. 
Как считать тройники и прочие содинения? В воздуховодах насколько я знаю они включены, а дымовых трубах?
И что значит расценка ТЕР09-06-033-02 "Монтаж каркасов вытяжных, вентиляционных и дымовых труб высотой до 250 м" Эту расценку тоже надо применять?  
Затем включу защиту от коррозии по 13 сборнику и заделку отверстий по 46 сборнику. Смету пока не составляю так как на моих чертежах не видно точные размеры труб,  не ясно из какой они толщины и пр. Завтра буду к прорабу приставать.
 
veronika-2Дата: Вторник, 14.01.2014, 16:30 | Сообщение # 5
Генералиссимус
Ростов-на-Дону
Награды:
449  
Группа: Модераторы
Город: Ростов-на-Дону
Сообщений: 21653
Репутация: 809
Статус: Offline
Цитата Marlin1983 ()
Как считать тройники и прочие содинения? В воздуховодах насколько я знаю они включены, а дымовых трубах?
у вас дымовая труба должна идти комплектом, т.е. заводского изготовления. по идее.
Цитата Marlin1983 ()
И что значит расценка ТЕР09-06-033-02 "Монтаж каркасов вытяжных, вентиляционных и дымовых труб высотой до 250 м" Эту расценку тоже надо применять?
надо. если у вас есть каркас. либо стойка, к которой дымовая труба крепится. в противном случае - нет

Добавлено (14.01.2014, 16:30)
---------------------------------------------

Цитата Marlin1983 ()
Смету пока не составляю так как на моих чертежах не видно точные размеры труб, не ясно из какой они толщины и пр.
потому и уточните - если заводского изготовления - то расценка на монтаж и стоимость трубы по прайсу. если нет - то монтаж и стоимость готовой конструкции по сборнику цен.


Психологические консультации онлайн.
Мой телеграмм
https://t.me/psyrnd2023
Вконтакте
https://vk.com/public214093226


Сообщение отредактировал veronika-2 - Вторник, 14.01.2014, 16:29
 
Marlin1983Дата: Вторник, 14.01.2014, 16:41 | Сообщение # 6
Лейтенант
Рязань
Награды:
0  
Группа: Проверенные
Город: Рязань
Сообщений: 66
Репутация: 0
Статус: Offline
газоходы диам.220мм буду пробовать осмечивать по ТЕР м06-02-014-05 или по 20 сборнику как воздуховоды

Добавлено (14.01.2014, 16:41)
---------------------------------------------
veronika-2, спасибо за ответ.

 
adiLДата: Понедельник, 07.04.2014, 10:43 | Сообщение # 7
Лейтенант
Вологда
Награды:
2  
Группа: Проверенные
Город: Вологда
Сообщений: 49
Репутация: 0
Статус: Offline
Здравствуйте, помогите пожалуйста мне!!)
Не могу разобраться...у меня в спецификации есть труба, к ней еще элементы (ревизии, отводы, глушитель, компенсатор, прямые части) вот не знаю по каким их можно взять расценкам....мои предположения отводы, ревизии, прямые участки по 22 сборнику как фасонину, глушитель по 20сб, а компенсатор - по 24сборнику как сильфонный. Правильно ли я думаю??
И еще вот труба у меня крепиться к ферменной конструкции так ее можно взять как каркас по 09-06-033-01???
чертежи прилагаю

Добавлено (07.04.2014, 10:43)
---------------------------------------------
Ни кто мне не скажет - правильно ли я думаю!!!???

Прикрепления: 7921743.jpg (222.7 Kb) · 4686254.jpg (280.1 Kb) · 5944627.jpg (220.3 Kb)


Сообщение отредактировал adiL - Воскресенье, 06.04.2014, 20:30
 
veronika-2Дата: Понедельник, 07.04.2014, 10:55 | Сообщение # 8
Генералиссимус
Ростов-на-Дону
Награды:
449  
Группа: Модераторы
Город: Ростов-на-Дону
Сообщений: 21653
Репутация: 809
Статус: Offline
adiL, неправильно


Психологические консультации онлайн.
Мой телеграмм
https://t.me/psyrnd2023
Вконтакте
https://vk.com/public214093226
 
adiLДата: Понедельник, 07.04.2014, 12:13 | Сообщение # 9
Лейтенант
Вологда
Награды:
2  
Группа: Проверенные
Город: Вологда
Сообщений: 49
Репутация: 0
Статус: Offline
veronika-2, а Вы не подскажете как правильно???
 
RosaДата: Понедельник, 07.04.2014, 13:28 | Сообщение # 10
Генерал-майор
Rîbniţa
Награды:
7  
Группа: Проверенные
Город: Rîbniţa
Сообщений: 423
Репутация: 6
Статус: Offline
Если у вас дымовая труба, надо её брать по 9сб.
 
  • Страница 1 из 1
  • 1
Поиск:

Сервисы



Телеграмм чат


Администратор
icq: 264-585-675
e-mail: andreyka_s@list.ru
web: www.semushin.name


Согласно п. 4.5 Правил Сметного портала запрещено размещение материалов попадающих под действие Статьи 1259 и Статьи 1270 ГК РФ, на которые распространяются авторские права правообладателя, без согласования с ним. В случае обнаружения материалов нарушающих права правообладателя просим сообщить через форму обратной связи.
Семушин А.А.
Яндекс.Метрика