Приветствую Вас Гость :: RSS :: Воскресенье :: 28.12.2025 ::
Реклама на сайте
Меню портала

Форма входа

Мини-чат

[ Новые сообщения · Участники · Правила форума · Поиск · RSS ]

  • Страница 1 из 1
  • 1
Установка металлического каркаса в проемах
kerlfulДата: Пятница, 21.12.2012, 12:08 | Сообщение # 1
Лейтенант
Москва
Награды:
0  
Группа: Проверенные
Город: Москва
Сообщений: 44
Репутация: 0
Статус: Offline
Здравствуйте, подскажите пожалуйста!
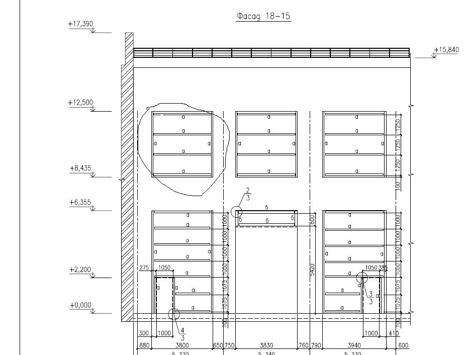
Такая ситуация: в ходе реконструкции здания, планируется установка металлического каркаса в проемах (из квадратных труб) для последующей обшивки профлистом (на чертеже ). Какую расценку можно применить на устройство каркаса? Изначально подумывал о ФЕР09-03-014-01 (связи и распорки), но смущает то, что там присутствуют вертикальные элементы confused
Прикрепления: 3654334.jpg (75.1 Kb) · 0042902.jpg (129.9 Kb)
 
тегаДата: Пятница, 21.12.2012, 14:22 | Сообщение # 2
Генерал-майор
Рыбинск
Награды:
125  
Группа: Проверенные
Город: Рыбинск
Сообщений: 404
Репутация: 214
Статус: Offline
kerlful, Может взять 09-03-37-1 рамы коробчатого сечения


Лишь потеряв всё до конца, мы обретаем свободу( "Бойцовский клуб)
 
kerlfulДата: Пятница, 21.12.2012, 14:29 | Сообщение # 3
Лейтенант
Москва
Награды:
0  
Группа: Проверенные
Город: Москва
Сообщений: 44
Репутация: 0
Статус: Offline
В принципе похоже, только там есть работы по пробиве отверстий в стенах. А посчитать сколько нужно отверстий(под анкера) проблематично. Решил остановиться на ФЕРр53-25-1 приминительно. Спасибо, тега smile
 
Инженер-смет4икДата: Четверг, 20.11.2014, 15:27 | Сообщение # 4
Лейтенант
Воронеж
Награды:
1  
Группа: Проверенные
Город: Воронеж
Сообщений: 63
Репутация: 0
Статус: Offline
Добрый день! Подскажите пожалуйста  в таком вопросе. В кирпичной стене нужно установить монтажный блок (состоит из уголков и листа) для прохода через стену кабелей. Размером он 200х300. Его нужно изготовить и смонтировать в стену. Только вот не могу подобрать расценку....9 сборник вдоль и поперек обрыскала....Помогите пожалуйста!
Прикрепления: Doc1.docx (584.3 Kb)
 
veronika-2Дата: Четверг, 20.11.2014, 15:32 | Сообщение # 5
Генералиссимус
Ростов-на-Дону
Награды:
449  
Группа: Модераторы
Город: Ростов-на-Дону
Сообщений: 21653
Репутация: 809
Статус: Offline
Инженер-смет4ик, люки в 9 сб ищите


Психологические консультации онлайн.
Мой телеграмм
https://t.me/psyrnd2023
Вконтакте
https://vk.com/public214093226
 
Инженер-смет4икДата: Четверг, 20.11.2014, 15:37 | Сообщение # 6
Лейтенант
Воронеж
Награды:
1  
Группа: Проверенные
Город: Воронеж
Сообщений: 63
Репутация: 0
Статус: Offline
veronika-2, вот расценка 09-06-001-1, а она же сборку этого монтажного блока получается не учитывает? Только монтаж и крепление. Нужно дополнительно сборку брать, или тут конструкция простая,и так установят?
 
ЗеленоглазаяДата: Пятница, 21.11.2014, 12:42 | Сообщение # 7
Генерал-лейтенант
Барнаул
Награды:
40  
Группа: Проверенные
Город: Барнаул
Сообщений: 776
Репутация: 136
Статус: Offline
Инженер-смет4ик, если из уголка и листа, следовательно сборная, значит берите еще изготовление по М38
 
Tanja55Дата: Пятница, 21.11.2014, 14:33 | Сообщение # 8
Генералиссимус
Санкт-Петербург
Награды:
342  
Группа: Проверенные
Город: Санкт-Петербург
Сообщений: 11323
Репутация: 339
Статус: Offline
Цитата Зеленоглазая ()
если из уголка и листа, следовательно сборная, значит берите еще изготовление по М38
зачем, если есть конструкции сварные в СЦМ201?


Работаю в программе А0
 
Инженер-смет4икДата: Пятница, 21.11.2014, 14:56 | Сообщение # 9
Лейтенант
Воронеж
Награды:
1  
Группа: Проверенные
Город: Воронеж
Сообщений: 63
Репутация: 0
Статус: Offline
Tanja55, я все конструкции беру отдельно и по прайс-листу, так хотят заказчики...но там такая конструкция...маленькая и легкая...нужен ли монтажник?
 
Tanja55Дата: Пятница, 21.11.2014, 15:02 | Сообщение # 10
Генералиссимус
Санкт-Петербург
Награды:
342  
Группа: Проверенные
Город: Санкт-Петербург
Сообщений: 11323
Репутация: 339
Статус: Offline
Цитата Инженер-смет4ик ()
я все конструкции беру отдельно и по прайс-листу
конструкции или прокат?


Работаю в программе А0
 
Инженер-смет4икДата: Пятница, 21.11.2014, 15:23 | Сообщение # 11
Лейтенант
Воронеж
Награды:
1  
Группа: Проверенные
Город: Воронеж
Сообщений: 63
Репутация: 0
Статус: Offline
Tanja55, уголок и лист, в сообщениях выше есть чертежики=)
 
  • Страница 1 из 1
  • 1
Поиск:

Сервисы



Телеграмм чат


Администратор
icq: 264-585-675
e-mail: andreyka_s@list.ru
web: www.semushin.name


Согласно п. 4.5 Правил Сметного портала запрещено размещение материалов попадающих под действие Статьи 1259 и Статьи 1270 ГК РФ, на которые распространяются авторские права правообладателя, без согласования с ним. В случае обнаружения материалов нарушающих права правообладателя просим сообщить через форму обратной связи.
Семушин А.А.
Яндекс.Метрика