Приветствую Вас Гость :: RSS :: Понедельник :: 02.03.2026 ::
Реклама на сайте
Меню портала

Форма входа

Мини-чат

[ Новые сообщения · Участники · Правила форума · Поиск · RSS ]

  • Страница 2 из 2
  • «
  • 1
  • 2
Усиление плиты покрытия 1,5х12м
ffnsДата: Четверг, 28.08.2014, 12:02 | Сообщение # 16
Генералиссимус
Награды:
29  
Группа: Проверенные
Сообщений: 1768
Репутация: 24
Статус: Offline
Цитата Крошк@ ()
Ну как то так, не знаю, наверно не очень понятно объяснила
1. Конкретно пишите, какой материал Вам дали.
2. конструктив - НЕ понятен, эскизы есть?
 
Крошк@Дата: Четверг, 28.08.2014, 12:18 | Сообщение # 17
Подполковник
Нижний Новгород
Награды:
0  
Группа: Проверенные
Город: Нижний Новгород
Сообщений: 123
Репутация: 2
Статус: Offline
Вот отсканировала
Прикрепления: 4943751.jpg (202.8 Kb)


Собралась с мыслями и поняла — мне без них спокойней…
Самая большая ошибка - это боязнь совершить ошибку...
 
ffnsДата: Четверг, 28.08.2014, 12:31 | Сообщение # 18
Генералиссимус
Награды:
29  
Группа: Проверенные
Сообщений: 1768
Репутация: 24
Статус: Offline
Цитата Крошк@ ()
Вот отсканировалаПрикрепления: 4943751.jpg(203Kb)

Судя по всему, у Вас металлические балки, поэтому смотрим из 46-01-004-01 или около.
Так же не забудьте учесть стоимость м/к и сопутствующего материала.
 
Крошк@Дата: Четверг, 28.08.2014, 13:21 | Сообщение # 19
Подполковник
Нижний Новгород
Награды:
0  
Группа: Проверенные
Город: Нижний Новгород
Сообщений: 123
Репутация: 2
Статус: Offline
ffns, спасибо


Собралась с мыслями и поняла — мне без них спокойней…
Самая большая ошибка - это боязнь совершить ошибку...
 
AleksejДата: Четверг, 28.08.2014, 13:31 | Сообщение # 20
Генералиссимус
Сочи
Награды:
147  
Группа: Проверенные
Город: Сочи
Сообщений: 3853
Репутация: 240
Статус: Offline
Крошк@, У вас швеллер полоса уголок.
По ресурсам посмотрите  ТЕР46-01-009-01
Бетонирование отдельно.
 
Крошк@Дата: Пятница, 29.08.2014, 11:28 | Сообщение # 21
Подполковник
Нижний Новгород
Награды:
0  
Группа: Проверенные
Город: Нижний Новгород
Сообщений: 123
Репутация: 2
Статус: Offline
Aleksej, спасибо

Добавлено (29.08.2014, 11:28)
---------------------------------------------
Aleksej, а можно для бетонирования взять расценку ФЕР46-01-008-03 Заполнение бетоном отдельных мест в перекрытиях?



Собралась с мыслями и поняла — мне без них спокойней…
Самая большая ошибка - это боязнь совершить ошибку...
 
RosaMHДата: Пятница, 11.12.2015, 10:08 | Сообщение # 22
Генерал-майор
Новосибирск
Награды:
10  
Группа: Проверенные
Город: Новосибирск
Сообщений: 410
Репутация: 11
Статус: Offline
Здравствуйте, коллеги!
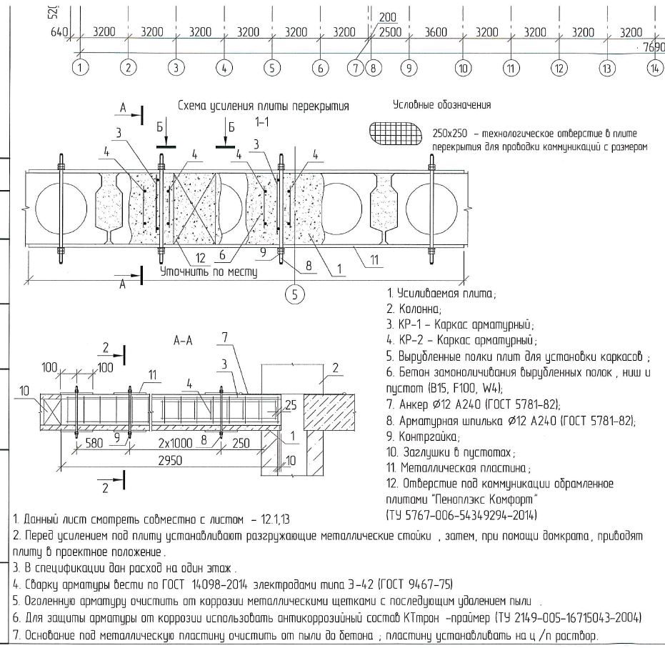
Расцениваю работу по усилению плит перекрытия металлическими пластинами сверху и снизу, с креплением их шпильками. Шпильки вставляются в сквозные отверстия сквозь плиту перекрытия.
Я взяла следующие расценки: ФЕР46-03-013-01(-14), ФЕР46-01-003-01(прим.), искл. 103-0140, + ФССЦ-201-0768 + ФССЦ-101-1439 + ФССЦ-101-0123 + ФССЦ-101-2177; ФЕР07-05-039-14(-15)
Экспертиза уверяет, что вся эта конструкция рассчитывается по ФЕР06-01-015-09 "Установка закладных деталей весом: более 20 кг".
Я им предлагала сойтись хоть на 46-01-004-2. Они сначала согласились, а потом опять уверяют меня, что это закладные и никак иначе. Никаких доводов не принимают.
Как бы вы расценили эту работу?
Примечание: каркасы во внимание не принимаем, только конструкцию с  металлическими пластинами.
Прикрепления: 3380150.jpg (169.5 Kb)


Работаю в "ПК ГРАНД-Смета" версия 2022.1
 
veronika-2Дата: Пятница, 11.12.2015, 10:28 | Сообщение # 23
Генералиссимус
Ростов-на-Дону
Награды:
449  
Группа: Модераторы
Город: Ростов-на-Дону
Сообщений: 21653
Репутация: 809
Статус: Offline
RosaMH, это 46 сб однозначно, даже по составу работ. если настаивают по 6 сб как закладные - то добавляйте 46 сб на сверление отверстий алмазными сверлами, там нехило выйдет, а в 6 сб эта работа никак не учтена


Психологические консультации онлайн.
Мой телеграмм
https://t.me/psyrnd2023
Вконтакте
https://vk.com/public214093226
 
RosaMHДата: Пятница, 11.12.2015, 10:40 | Сообщение # 24
Генерал-майор
Новосибирск
Награды:
10  
Группа: Проверенные
Город: Новосибирск
Сообщений: 410
Репутация: 11
Статус: Offline
veronika-2, спасибо за поддержку flower , тоже думаю, что однозначно сб.46, но прямой расценки, к сожалению, нет.
Не пропускают они сверление в принципе. Только закладные. Я им свою смету повторно отправила. Буду ждать оф.замечаний. Потом отвечу им.


Работаю в "ПК ГРАНД-Смета" версия 2022.1
 
inokgarДата: Понедельник, 15.04.2019, 19:38 | Сообщение # 25
Рядовой
Награды:
0  
Группа: Проверенные
Сообщений: 1
Репутация: 0
Статус: Offline
Здравствуйте. Подскажите, пожалуйста, насчет следующих работ ( расценок) по усилению плит покрытия 6х1,5м. Перечень работ: 1. устройство пазов в плитах под установку дополнительной арматуры. 2. подготовка поверхности плит к их последующему бетонированию. 3. усиление ребер плит с помощью установки дополнительной арматуры. 4. усиление плит с помощью наращивания монолитного слоя снизу. 5. устройство защитного слоя из торкрет бетона. 6. покрытие поверхности плиты лакокрасоным антикоррозионным покрытием. Есть расценка на усиление плит сверху, но она не подойдет сюда. Торкретирование взял по ТЕР 06-01-067-02
 
  • Страница 2 из 2
  • «
  • 1
  • 2
Поиск:

Сервисы



Телеграмм чат


Администратор
icq: 264-585-675
e-mail: andreyka_s@list.ru
web: www.semushin.name


Согласно п. 4.5 Правил Сметного портала запрещено размещение материалов попадающих под действие Статьи 1259 и Статьи 1270 ГК РФ, на которые распространяются авторские права правообладателя, без согласования с ним. В случае обнаружения материалов нарушающих права правообладателя просим сообщить через форму обратной связи.
Семушин А.А.
Яндекс.Метрика