Приветствую Вас Гость :: RSS :: Воскресенье :: 19.04.2026 ::
Реклама на сайте
Меню портала

Форма входа

Мини-чат

[ Новые сообщения · Участники · Правила форума · Поиск · RSS ]

  • Страница 2 из 2
  • «
  • 1
  • 2
Приставные утепленные дымоходы
ВольдемарДата: Вторник, 19.08.2014, 10:03 | Сообщение # 16
Генерал-майор
Волгоград
Награды:
1  
Группа: Проверенные
Город: Волгоград
Сообщений: 283
Репутация: 6
Статус: Offline
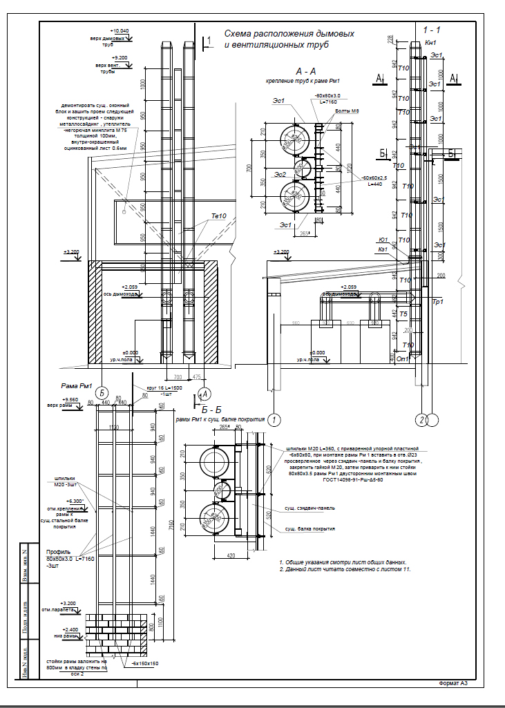
Помоготи осметить такой дымоход Вулкан
http://www.spr.ru/site_go.php?id_firm=1127525

По сб 20 мало выходит 42 т.р. за работу без НДС((((
Прикрепления: 2393597.jpg (387.2 Kb)


Всё получится. Чего бы это мне не стоило!
ПК "ГРАНД-Смета -2021.1", ПК "ГРАНД-Смета -2019", ПК РИК


Сообщение отредактировал Вольдемар - Вторник, 19.08.2014, 10:36
 
vladnikДата: Вторник, 19.08.2014, 10:26 | Сообщение # 17
Ценовой инженер
СПб-ЛО
Награды:
285  
Группа: Проверенные
Город: СПб-ЛО
Сообщений: 14460
Репутация: 349
Статус: Offline
biggrin Это много.. правильнее вообще его "собирать" как канализацию..
 
Sane4kaДата: Вторник, 19.08.2014, 10:28 | Сообщение # 18
Мисс Март 2012
Апатиты
Награды:
183  
Группа: Модераторы
Город: Апатиты
Сообщений: 5574
Репутация: 228
Статус: Offline
Вольдемар, по моему, ваш дымоход как раз по 20-му расценивается. А увеличить, если только сопутствующие какие работы взять. А какие, это проект надо смотреть или что у вас там.
 
ВольдемарДата: Вторник, 19.08.2014, 10:38 | Сообщение # 19
Генерал-майор
Волгоград
Награды:
1  
Группа: Проверенные
Город: Волгоград
Сообщений: 283
Репутация: 6
Статус: Offline
Sane4ka, проект прикрепил!
Смету выложу как до компа доберусь.

vladnik, много за работу? smile
Спасибо за идею...


Всё получится. Чего бы это мне не стоило!
ПК "ГРАНД-Смета -2021.1", ПК "ГРАНД-Смета -2019", ПК РИК


Сообщение отредактировал Вольдемар - Вторник, 19.08.2014, 10:48
 
  • Страница 2 из 2
  • «
  • 1
  • 2
Поиск:

Сервисы



Телеграмм чат


Администратор
icq: 264-585-675
e-mail: andreyka_s@list.ru
web: www.semushin.name


Согласно п. 4.5 Правил Сметного портала запрещено размещение материалов попадающих под действие Статьи 1259 и Статьи 1270 ГК РФ, на которые распространяются авторские права правообладателя, без согласования с ним. В случае обнаружения материалов нарушающих права правообладателя просим сообщить через форму обратной связи.
Семушин А.А.
Яндекс.Метрика