Приветствую Вас Гость :: RSS :: Суббота :: 28.03.2026 ::
Реклама на сайте
Меню портала

Форма входа

Мини-чат

[ Новые сообщения · Участники · Правила форума · Поиск · RSS ]

  • Страница 3 из 3
  • «
  • 1
  • 2
  • 3
ТЕР46-01-009-03 Усиление металлоконструкций стропильных ферм
ЖентосинаДата: Вторник, 11.11.2014, 14:07 | Сообщение # 31
Сержант
Йошкар-Ола
Награды:
0  
Группа: Проверенные
Город: Йошкар-Ола
Сообщений: 22
Репутация: 0
Статус: Offline
Серьга, Подрядчик берет стоимость уголка по прайсу, утверждая, что покупает просто профиль, а его нужно разрезать по размерам.
 
СерьгаДата: Вторник, 11.11.2014, 14:17 | Сообщение # 32
Победитель конкурса Защитник 2012
Санкт-Петербург
Награды:
168  
Группа: Проверенные
Город: Санкт-Петербург
Сообщений: 4661
Репутация: 267
Статус: Offline
Жентосина, Да мало ли что он берет и почему. Правильно нарезку учесть в стоимости материала, т.е учесть в смете стоимость ИЗДЕЛИЯ (порезанного уголка), что бы это сделать нужно взять ССЦ и найти там материал "м/к из одного профиля", он дороже чем просто уголок хоть т.к учитывает ИЗГОТОВЛЕНИЕ (резку).


Нечего на компьютер пенять, коли руки кривы... (народная мудрость)
 
ЖентосинаДата: Вторник, 11.11.2014, 15:48 | Сообщение # 33
Сержант
Йошкар-Ола
Награды:
0  
Группа: Проверенные
Город: Йошкар-Ола
Сообщений: 22
Репутация: 0
Статус: Offline
Серьга, спасибо!
 
upravalpДата: Вторник, 05.05.2015, 00:39 | Сообщение # 34
Рядовой
Награды:
0  
Группа: Пользователи
Сообщений: 1
Репутация: 0
Статус: Offline
Уважаемые, всех - с Праздниками!
Скажите - ни у кого под рукой нет ППР по теме? Требуется усиление стропильных ферм!...
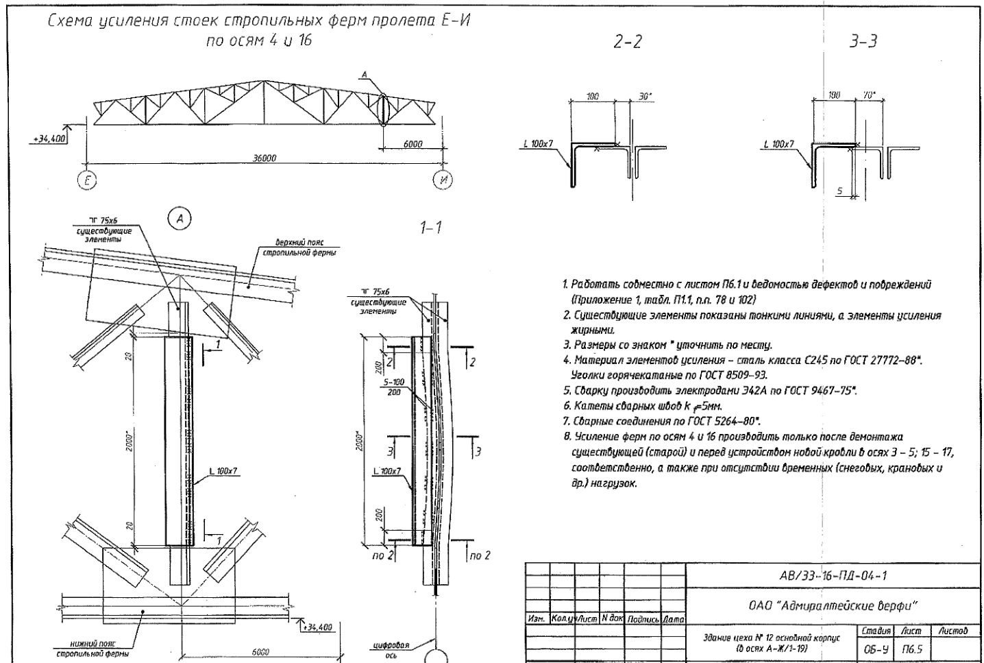
Прикрепления: 8588757.jpg (485.6 Kb) · 7981450.jpg (457.2 Kb) · 0142996.jpg (489.2 Kb) · 8721218.jpg (510.0 Kb) · 1993758.jpg (485.6 Kb) · 9475396.jpg (527.3 Kb) · 1_.15_._.pdf (309.9 Kb)
 
Irinka033Дата: Пятница, 22.04.2016, 12:06 | Сообщение # 35
Генерал-майор
Новосибирск
Награды:
0  
Группа: Проверенные
Город: Новосибирск
Сообщений: 350
Репутация: 1
Статус: Offline
Добрый день! Подскажите, какую расценку применить можно на усиление ригеля? Доваривается деталь по месту на него, а также два ригеля между собой раскрепляются тяжами из арматуры.
 
ПровокатoрДата: Пятница, 22.04.2016, 12:38 | Сообщение # 36
Генерал-майор
Москва
Награды:
6  
Группа: Проверенные
Город: Москва
Сообщений: 352
Репутация: 25
Статус: Offline
Irinka033, хм..ригеля металл? ..


https://www.facebook.com/profile.php?id=100026513626601 https://twitter.com/lashkov_74
 
Irinka033Дата: Пятница, 22.04.2016, 12:39 | Сообщение # 37
Генерал-майор
Новосибирск
Награды:
0  
Группа: Проверенные
Город: Новосибирск
Сообщений: 350
Репутация: 1
Статус: Offline
Провокатoр, да, металлического
 
ПровокатoрДата: Пятница, 22.04.2016, 12:50 | Сообщение # 38
Генерал-майор
Москва
Награды:
6  
Группа: Проверенные
Город: Москва
Сообщений: 352
Репутация: 25
Статус: Offline
Irinka033, 46-01-009-7   ?


https://www.facebook.com/profile.php?id=100026513626601 https://twitter.com/lashkov_74
 
Irinka033Дата: Пятница, 22.04.2016, 13:18 | Сообщение # 39
Генерал-майор
Новосибирск
Награды:
0  
Группа: Проверенные
Город: Новосибирск
Сообщений: 350
Репутация: 1
Статус: Offline
Провокатoр, вот я тоже думала о ней уже... Смущает, конечно, наименование немного) а вообще у нас новое строительство, просто узлы уже вот так по месту дорабатываем. Правомерно вообще будет 46 сборник взять?
 
ПровокатoрДата: Пятница, 22.04.2016, 16:48 | Сообщение # 40
Генерал-майор
Москва
Награды:
6  
Группа: Проверенные
Город: Москва
Сообщений: 352
Репутация: 25
Статус: Offline
Irinka033, усиление это как раз 46


https://www.facebook.com/profile.php?id=100026513626601 https://twitter.com/lashkov_74
 
  • Страница 3 из 3
  • «
  • 1
  • 2
  • 3
Поиск:

Сервисы



Телеграмм чат


Администратор
icq: 264-585-675
e-mail: andreyka_s@list.ru
web: www.semushin.name


Согласно п. 4.5 Правил Сметного портала запрещено размещение материалов попадающих под действие Статьи 1259 и Статьи 1270 ГК РФ, на которые распространяются авторские права правообладателя, без согласования с ним. В случае обнаружения материалов нарушающих права правообладателя просим сообщить через форму обратной связи.
Семушин А.А.
Яндекс.Метрика