Приветствую Вас Гость :: RSS :: Четверг :: 25.12.2025 ::
Реклама на сайте
Меню портала

Форма входа

Мини-чат

[ Новые сообщения · Участники · Правила форума · Поиск · RSS ]

Поиск расценок
smet4ukДата: Вторник, 26.02.2013, 07:04 | Сообщение # 1
Участник конкурса Защитник 2012
Красногорск
Награды:
116  
Группа: Администраторы
Город: Красногорск
Сообщений: 2934
Репутация: 100
Статус: Offline
Информация по поиску расценок


Работаю в: Гранд-Смета, Pilot Ice
Чат в ТГ:Сметный портал
 
Zaika89Дата: Четверг, 02.06.2016, 14:44 | Сообщение # 2656
Лейтенант
Волгоград
Награды:
0  
Группа: Проверенные
Город: Волгоград
Сообщений: 75
Репутация: 0
Статус: Offline
Как расценить демонтаж контейнера ДГУ ?
 
den795Дата: Четверг, 02.06.2016, 14:46 | Сообщение # 2657
Генералиссимус
Москва
Награды:
79  
Группа: Проверенные
Город: Москва
Сообщений: 4076
Репутация: 121
Статус: Offline
Zaika89, м37


Денис Владимирович
 
Zaika89Дата: Четверг, 02.06.2016, 14:57 | Сообщение # 2658
Лейтенант
Волгоград
Награды:
0  
Группа: Проверенные
Город: Волгоград
Сообщений: 75
Репутация: 0
Статус: Offline
den795, какой взять тогда коэф. на демонтаж  ДГУ ?
 
veronika-2Дата: Четверг, 02.06.2016, 14:58 | Сообщение # 2659
Генералиссимус
Ростов-на-Дону
Награды:
449  
Группа: Модераторы
Город: Ростов-на-Дону
Сообщений: 21653
Репутация: 809
Статус: Offline
Zaika89, по МДС 37


Психологические консультации онлайн.
Мой телеграмм
https://t.me/psyrnd2023
Вконтакте
https://vk.com/public214093226
 
Zaika89Дата: Пятница, 03.06.2016, 08:51 | Сообщение # 2660
Лейтенант
Волгоград
Награды:
0  
Группа: Проверенные
Город: Волгоград
Сообщений: 75
Репутация: 0
Статус: Offline
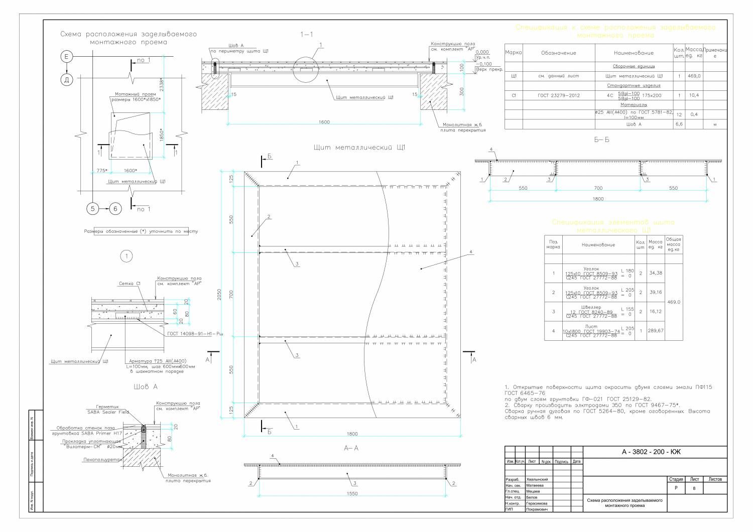
Прислали проектировщики чертеж по устройству люка. Я понимаю какие расценки брать  cry shutup
Прикрепления: 9101172.pdf (163.7 Kb)
 
veronika-2Дата: Пятница, 03.06.2016, 08:55 | Сообщение # 2661
Генералиссимус
Ростов-на-Дону
Награды:
449  
Группа: Модераторы
Город: Ростов-на-Дону
Сообщений: 21653
Репутация: 809
Статус: Offline
Цитата Zaika89 ()
какие расценки брать

там много каких. извините но чертеж не читаемый.


Психологические консультации онлайн.
Мой телеграмм
https://t.me/psyrnd2023
Вконтакте
https://vk.com/public214093226
 
Zaika89Дата: Пятница, 03.06.2016, 09:19 | Сообщение # 2662
Лейтенант
Волгоград
Награды:
0  
Группа: Проверенные
Город: Волгоград
Сообщений: 75
Репутация: 0
Статус: Offline
veronika-2, так получше вроде видно
Прикрепления: 1086787.jpg (151.6 Kb)
 
dozorДата: Пятница, 03.06.2016, 09:24 | Сообщение # 2663
Генералиссимус
Санкт-Петербург
Награды:
110  
Группа: Модераторы
Город: Санкт-Петербург
Сообщений: 4520
Репутация: 224
Статус: Offline
Zaika89, а где люк?  Есть монтажный проем с щитом. 
к этому чертежу еще лист с АР прилагается.
 
veronika-2Дата: Пятница, 03.06.2016, 09:24 | Сообщение # 2664
Генералиссимус
Ростов-на-Дону
Награды:
449  
Группа: Модераторы
Город: Ростов-на-Дону
Сообщений: 21653
Репутация: 809
Статус: Offline
Zaika89, монтаж щита - 9 сб. окраска-огрунтовка - 13 сб. армирование - 6 сб. бетонирование у вас предусматриваться должно в конструкции пола. герметизация швов - 7 сб и возможно что-то еще


Психологические консультации онлайн.
Мой телеграмм
https://t.me/psyrnd2023
Вконтакте
https://vk.com/public214093226
 
veronika-2Дата: Пятница, 03.06.2016, 09:26 | Сообщение # 2665
Генералиссимус
Ростов-на-Дону
Награды:
449  
Группа: Модераторы
Город: Ростов-на-Дону
Сообщений: 21653
Репутация: 809
Статус: Offline
dozor
Цитата dozor ()
Есть монтажный проем с щитом.

так проем заделывается как я понимаю


Психологические консультации онлайн.
Мой телеграмм
https://t.me/psyrnd2023
Вконтакте
https://vk.com/public214093226
 
dozorДата: Пятница, 03.06.2016, 09:50 | Сообщение # 2666
Генералиссимус
Санкт-Петербург
Награды:
110  
Группа: Модераторы
Город: Санкт-Петербург
Сообщений: 4520
Репутация: 224
Статус: Offline
veronika-2, да все правильно Вера, я немного о терминологии))  На чертеже такого слова нет.
 
veronika-2Дата: Пятница, 03.06.2016, 09:53 | Сообщение # 2667
Генералиссимус
Ростов-на-Дону
Награды:
449  
Группа: Модераторы
Город: Ростов-на-Дону
Сообщений: 21653
Репутация: 809
Статус: Offline
Цитата dozor ()
да все правильно Вера, я немного о терминологии)) На чертеже такого слова нет.

есть. вверху слева - Схема расположения заделываемого монтажного проема. и в угловом штампе прописано. или ты о другом? а, поняла тебя... автор про ЛЮК спрашивает smile


Психологические консультации онлайн.
Мой телеграмм
https://t.me/psyrnd2023
Вконтакте
https://vk.com/public214093226
 
Zaika89Дата: Пятница, 03.06.2016, 13:23 | Сообщение # 2668
Лейтенант
Волгоград
Награды:
0  
Группа: Проверенные
Город: Волгоград
Сообщений: 75
Репутация: 0
Статус: Offline
Как можно расценить монтаж грязезащитного покрытия (для пола)?
 
veronika-2Дата: Пятница, 03.06.2016, 13:24 | Сообщение # 2669
Генералиссимус
Ростов-на-Дону
Награды:
449  
Группа: Модераторы
Город: Ростов-на-Дону
Сообщений: 21653
Репутация: 809
Статус: Offline
Zaika89, как настилку чего-нибудь.


Психологические консультации онлайн.
Мой телеграмм
https://t.me/psyrnd2023
Вконтакте
https://vk.com/public214093226
 
Galina53Дата: Пятница, 03.06.2016, 16:25 | Сообщение # 2670
Генералиссимус
Кемерово
Награды:
242  
Группа: Проверенные
Город: Кемерово
Сообщений: 11640
Репутация: 207
Статус: Offline
Цитата Zaika89 ()
грязезащитного покрытия (для пола)
А это что? Резиновые коврики у входа?
 
Поиск:

Сервисы



Телеграмм чат


Администратор
icq: 264-585-675
e-mail: andreyka_s@list.ru
web: www.semushin.name


Согласно п. 4.5 Правил Сметного портала запрещено размещение материалов попадающих под действие Статьи 1259 и Статьи 1270 ГК РФ, на которые распространяются авторские права правообладателя, без согласования с ним. В случае обнаружения материалов нарушающих права правообладателя просим сообщить через форму обратной связи.
Семушин А.А.
Яндекс.Метрика